Zum Hauptinhalt springen Zur Suche springen Zur Hauptnavigation springen
Jetzt Black Friday Preise sichern – es wird nicht mehr günstiger!
Beratung
Sales Contact Image
Verkaufsberatung: 040 76 122 122
Rückrufservice
Tage
Extra gratis Zubehör - automatisch im Warenkorb bei vielen Artikeln

8.019,00 €

inkl. MwSt. | zzgl. Versandkosten

Alpholz Home-Office 5

Die unten ausgewählten Zubehörartikel werden mit in den Warenkorb gelegt.
Purchase Advice Image
Persönliche Produkt- & Kaufberatung gewünscht Tel: 040 76 122 122
Fragen zum Produkt und extra Deal sichern?
WhatsApp-Beratung und Extra-Deal sichern!
Whatsapp Beratung
Lieferzeit ca. 7-9 Wochen
Skonto Icon
-3% Skonto bei Vorkasse
Produktvarianten
Farbbehandlung wählen:
natur
Lieferung zum Wunschzeitraum
Passendes Zubehör zu diesem Produkt
Produktbeschreibung

Alpholz Home-Office – Dein Büro im Grünen. Arbeiten, wo andere entspannen – mit dem Alpholz Home-Office holst du dir ein Stück Freiheit in den Arbeitsalltag. Schluss mit Küchentisch und Ablenkung im Wohnzimmer! Dieses stilvolle Gartenhaus bringt Struktur, Ruhe und Inspiration direkt in deinen Garten. Das Gartenhaus ist aus hochwertigem, massivem Holz gefertigt und fügt sich harmonisch in deinen Garten ein. Fenster sorgen für viel Tageslicht und ein angenehmes Raumklima – perfekt für konzentriertes Arbeiten, kreative Pausen oder wichtige Videocalls. 

in verschiedenen Farben erhältlich

 wasserdichte Ecken dank moderner Eckverbindung

Verglasung aus ISO-Glas

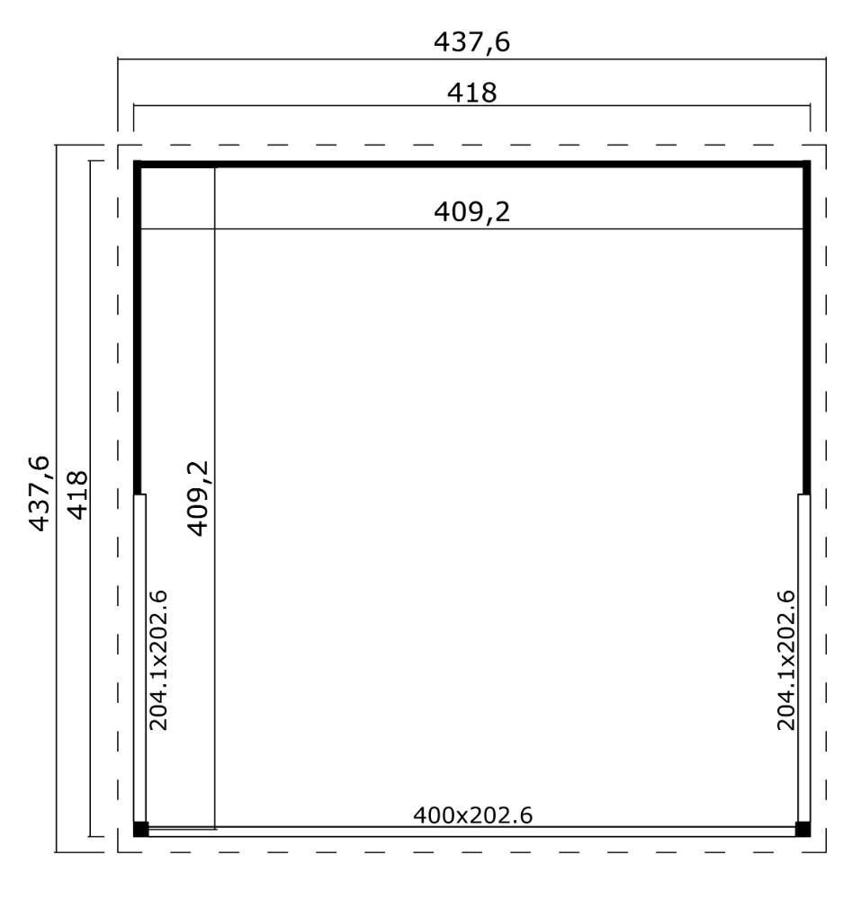
Artikeldetails Alpholz Home-Office 5:

  • Außenmaß mit Dachüberstand: 437,6 x 437,6 cm
  • Sockelmaß: 418 x 418 cm
  • Grundfläche Gartenhaus: ca. 16,74 m²
  • Seitenwandhöhe: ca. 222 cm
  • Gesamthöhe: ca. 239,4 cm
  • Rauminhalt Gartenhaus: ca. 38,79 m³
  • Dachneigung: 1,5°
  • Wandstärke: 44 mm
  • Farbe: natur/anthrazit
  • Farbe im Inneren: unbehandelt, natur
  • Material: Nordische Fichte
  • Bauweise: Steck-/Schraub-System
  • Schiebetüren mit Glas und mit Aluminium-Rahmen
  • Fenster (feststehend) mit Klarglas und mit Aluminium-Rahmen
  • Verglasung der Fenster: 4 mm ESG-Glas (Einscheibensicherheitsglas)
  • 18 mm Dach- und Fußbodenbretter Nut und Feder
  • inkl. imprägnierte Unterkonstruktion

Im Lieferumfang des Gartenhauses enthalten:

  • Alpholz Home-Office 5
  • Fußboden
  • 2x Schiebetür 204 x 202,6 cm bestehend aus 2 Elementen
  • Schiebetür 400 x 202,6 cm bestehend aus 4 Elementen
  • 1x Feststehendes Fenster
  • Montagematerial
  • Aufbauzeichnung

 

Wir weisen darauf hin, dass die Dacheindeckung optional erhältlich ist.

 

Zubehör & Services
2 Zubehörartikel sind gerade ausgewählt (inkl. unseren Empfehlungen). Die passenden Mengen sind voreingestellt.

Das benötigst du für den Aufbau

Sparset Montagezubehör und Befestigung ES

Mehr Details anzeigen

Sparset Montagezubehör und Befestigung ES

Feuchtigkeitssperre, Sturmwinkel                       

Basic Zubehör Set mit bis zu 20% Ersparnis gegenüber dem Einzelkauf!

Das Minimal Set für den sicheren Aufbau und Verankerung des Gartenhauses.

Wir empfehlen dieses Set dringend für jedes Gartenhaus. Damit ist dein Gartenhaus vor Feuchtigkeit und Sturm geschützt. Mit dem auf dein Haus abgestimmten Basis-Set hast du garantiert viele Jahre Freude an deinem Gartenhaus!

Dieses Set ist für Gartenhäuser mit einer Grundfläche von 0 - 20 m² berechnet. Mit diesem Set hast du mit einem Klick alles, was du für den sicheren Aufbau und Verankerung deines Gartenhauses benötigen – und das in ausreichender Menge.

Bestehend aus:

  • Feuchtigkeitssperre (Set ca. 100 Stk.)
  • Sturmwinkel (Set a 4 Stück)                                             

Beschreibung Feuchtigkkeitssperre:

Unterlage Pads aus Spezial-Gummigranulat für Lager- und Fundamenthölzer 

Gummigranulat Pads werden beim Aufbau der Unterkonstruktion eines Gartenhauses als Feuchtigkeitssperre und zum Ausgleich von Unebenheiten benutzt. Sie werden unterhalb der Unterkonstruktion angebracht bzw. auf der Fundamentplatte verlegt. Die Pads sollten bestenfalls alle 30-40 cm verlegt werden. Da die Pads aus einem spezial Gummigranulat hergestellt werden, können sie weder Wasser aufsaugen, noch gammeln. Das Gummi schützt die Unterkonstruktion des Gartenhauses gegen aufsteigende Nässe und vermeidet somit die Verwitterung und Fäule der Unterkonstruktion. Gleichzeitig ist durch den erhöhten Aufbau eine Drainage gewährleitet und das Wasser kann problemlos abfließen und eine perfekte Luftzirkulation ist unter den Fundamenthölzern gewährleistet.

Vorteile unserer Spezial Gummigranulat Pads

  • Keine scharfen Kanten
  • Schutz gegen aufsteigende Nässe
  • Dampfdiffusionsfähig
  • Trittschalldämmend
  • Gleicht Unebenheiten in der Bodenplatte aus
  • Rutschfest
  • Unverrottbar da aus 100% Gummi hergestellt
  • Formbeständig
  • Keine Staunässe unter den Hölzern
  • Dient als Drainage, Wasser kann in alle Richtungen abfließen

Abmessungen der Pads: 

60 x 60 x 6 mm  (Länge x Breite x Stärke)

Inhalt pro Verpackung

Eine Verpackungseinheit besteht aus ca. 100 Stück Spezial Gummigranulat Pads

Tipps und Tricks zur fachgerechten Verlegung der Gummigranulat Pads sind in diesem Infovideo zu finden :

Beschreibung Sturmwinkel:

Spezial Sturmwinkel-Set ( 4 Stück) zur Befestigung des Gartenhauses am Fundament

Wir empfehlen dein Gartenhaus in besonders windanfälligen Gebieten mit unseren Spezial Sturm-Winkeln an der Fundament- bzw. Bodenplatte zu befestigen. Die Winkel können wahlweise Innen oder Außen in mindestens allen vier Ecken Ihren Gartenhauses an der Bodenplatte befestigt werden. Der Spezial Winkel hat einen extra langen Schenkel und verbindet somit die Fundament- bzw. Bodenplatte mit dem Fundamentholz und den ersten beiden Blockbohlenreihen. Bei größeren Garten bzw. Blockbohlenhäusern sollte zusätzlich zu den vier Ecken noch mittig ein Winkel in jeder Wand gesetzt werden. Wir liefern die Sturmwinkel ohne Befestigungsmaterial (Schrauben & Dübel). 

Verpackungseinheit pro Set: 

Ein Set besteht aus 4 Spezial Sturmwinkeln (ohne Befestigungsmaterial)

Maße: ca. 28,5 x 9 x 6,5 cm; Materialstärke: ca. 0,5 cm

Tipps und Tricks zur fachgerechten Verlegung der Sturmwinkel bzw. des Windverankerungs-Sets sind in diesem Infovideo zu finden :

 

€ 79,00

Sparset Dacheindeckung KSK G WP 20 m² -

Mehr Details anzeigen

Sparset Dacheindeckung KSK G WP 20 m²

KSK Dachbahn und Winkelprofile inkl. Spenglerschrauben

Dacheindeckungs-Set - KSK mit bis zu 20% Ersparnis gegenüber dem Einzelkauf!

Das Komplettpaket für ein regensicheres Dach.

Dieses Set ist für Gartenhäuser mit einer Dachfläche von bis zu 20 m² berechnet. Mit diesem Set hast du mit einem Klick alles, was du für ein regensicheres Dach für dein Gartenhaus brauchst – und das in ausreichender Menge.

Bestehend aus:

  • KSK Dachbahn (10 Rollen)
  • Winkelprofil Typ 1b (10x 2m)
  • Spenglerschrauben mit Dichtscheiben (2x 20 St.)

Beschreibung KSK Dachbahn:

Die KSK Dachbahn ist eine selbstklebende Bitumendachbahn, die ohne Einsatz von Flammen schnell, einfach und sicher zur Abdichtung von Gartenhäusern, Garagen, Carports oder ähnlichen kleineren Bauwerken verwendet werden kann.

Artikeldetails zur KSK Dachbahn

  • Abmessung: 0,5 x 5m 
  • Dicke: ca. 4,0 mm 
  • Dachneigung ab 5°
  • Verarbeitungstemperatur: +15 bis +35 °C
  • Farbe: Anthrazit

Artikelbeschreibung Winkelprofil Typ 1b:

Für die dauerhaft Haltbarkeit Ihrer Dacheindeckung ist es erforderlich die Fugen zwischen Bitumenbahn oder Dachfolie und Dachblenden abzudecken um zu verhindern, dass Feuchtigkeit eindringt und sich die Dacheindeckung löst.

Das Winkelprofil Typ 1 aus Aluminium schützt nicht nur die Dachblenden an Flachdächern und Pultdächern vor Feuchtigkeit, sondern bietet ebenfalls einen sauberen und optisch ansprechenden Dachabschluß.

  • für die obere Schmalseite der Blenden an Flachdachhäusern Aluminium Anthrazit
  • Maße Typ 1b
  • A 30 mm
  • B 30 mm
  • C 15 mm
  • Länge 2 m
  • Stärke: 0,5 mm

Artikelbeschreibung Spenglerschrauben:

Spenglerschraube mit Dichtscheibe aus V2A, geeignet für z.B.:

  • Firstabdeckung
  • Winkelprofile
  • Traufbleche
  • Ortbleche
  • uvm.

Technische Details:

  • Abmessung: 4,5 x 20 / Torx
  • Farbe: Anthrazit RAL 7016
  • Inhalt: 20 St.

Wir empfehlen 4 Schrauben je Profil

Dieses Zubehörpaket ist mit allgemeinen Bedarfsmengen für das Gartenhaus kalkuliert. Durch verschiedene Verlegetechniken können die Mengen unterschiedlich ausgenutzt werden. Im Zweifelsfall empfehlen wir, die Artikel einzeln zu kaufen.

€ 499,00

Spenglerschrauben 4,5x20

Mehr Details anzeigen

Spenglerschrauben 4,5x20

Artikelbeschreibung:

Spenglerschraube mit Dichtscheibe aus V2A, geeignet für z.B.:

  • Firstabdeckung
  • Winkelprofile
  • Traufbleche
  • Ortbleche
  • uvm.

Technische Details:

  • Abmessung: 4,5 mm Durchmesser und 20 mm Länge / Torx
  • Farbe: Anthrazit RAL 7016
  • Inhalt: 20 St.

Bitte ändere die Anzahl der Schrauben auf die benötigte Menge. Wir empfehlen 4 Schrauben je Profil.

€ 29,00

Flachdachblende Typ 10

Mehr Details anzeigen

Flachdachblende Typ 10

Für Cubus und Flachdachhäuser ohne Blendbretter. An drei oder vier Hausseiten einsetzbar. Kombinierbar mit Dachrinne oder Fallrohrset

2 teiliges Set, bestehend aus:

  • 1x Typ 10a Leiste (außen): A: 120 mm; B: 30 mm; C: 15 mm; D:90°; E:225°; F:135°
  • 1x Typ 10b Leiste (innen): A: 85 mm; B: 85 mm; C: 30 mm; D:45°; E:135°
  • Aluminium, anthrazit pulverbeschichtet
  • Länge: je 200cm
  • Stärke: 0,8 mm

Schrauben sind nicht im Lieferumfang. Passende Spenglerschrauben sind hier.

 

€ 89,00

Fundamentträger Kunststoff - Robust

Mehr Details anzeigen

Fundamentträger Kunststoff

Bitte ändere die Anzahl der Fundamentträger auf die benötigte Menge.
Berechne einfach den Umfang des Garten- oder Gerätehauses und wähle die entsprechende Anzahl der Fundamentträger.

Dieser Fundamentträger aus Kunststoff hat eine praktische Tropfkante, die die erste Wandschicht gegen Feuchtigkeit schützt. 

  • Maße: 35 x 85 x 3000 mm
  • Material: Kunststoff
  • Menge: 1
  • in Kombination mit Fußboden/Fundamenthölzer zu nutzen
  • erhältlich in Standard Ausführung für alle Wandstärken 
  • einfacher Zuschnitt der Fundamentträger, mit jeder handelsüblichen Hand- oder Stichsäge möglich

 

 

€ 49,00

Werkzeug-Set zum Aufbau

Mehr Details anzeigen

Werkzeug-Set zum Aufbau

Das perfekte Werkzeug-Set für dich zusammengestellt - sorgfältig ausgesuchte Werkzeuge, welche bei keiner Montage fehlen dürfen. Mit diesem Set hast du mit einem Klick alles, was du für den Aufbau deines neuen Traumproduktes brauchst.
Lass nichts dem Zufall überlassen und sichere dir das Werkzeug-Set mit den richtigen Tools von den Profis!

Inhalte des Sets:

  • 2 Paar Arbeitshandschuhe Größe 10,5 (XL)
    Die Arbeit mit Holz bereitet große Freude, welche nicht durch einen kleinen Splitter geschmälert werden darf. Mit Arbeitshandschuhen werden solche Verletzungen vermieden.
  • Metallhammer mit Gummiaufsatz
    Zum Nachschlagen der Bohlen eignet sich nicht jeder Hammer, weil Aufsätze aus Metall zu hart für den Kontakt mit Holz sind und dieses beim Aufschlagen beschädigen. Um solche Schäden zu verhindern, empfiehlt sich die Nutzung eines Metallhammers mit Gummiaufsatz. Da der Aufsatz abnehmbar ist, kann der Hammer später wunderbar für andere Arbeiten weiterverwendet werden.
  • Rollbandmaß 5 m
    Das regelmäßige Abmessen dient dem planmäßigen Aufbau, sowie der Stabilität. Gerade das problemlose Schließen der Türen und Fenster erfordert beim Aufbau das Arbeiten mit Präzision, welches mit einem Rollbandmaß gewährleistet wird.
  • Handsäge
    Teils beinhalten Produkte Dach- oder Bodenbretter, welche vor der Verwendung angepasst werden müssen. Mit der in diesem Set vorhandenen Handsäge stellt dies keine Herausforderung dar.
  • Wasserwaage 600 mm
    Da du wahrscheinlich nicht den schiefen Turm von Pisa in Ihrem Garten haben möchten, sondern ein stabiles und sicheres Gartenhaus, bietet es sich an während des Aufbaus eine Wasserwaage zu nutzen, um das Lot von Fundament und Produkt im Auge zu behalten.
  • Spanngurt 6 m
    Nur ein gerades Haus ist ein sicheres Haus! Setze die Spanngurte zum Ausloten und Geradeziehen der Wände ein, um die erforderlichen Diagonal- und Winkelmaße leicht einhalten zu können.
  • Flachpinsel mit 30 mm und 60 mm Bürstenlänge
    Die Auswahl der Farbe unterscheidet dein Gartenhaus von dem des Nachbarn. Mit den entsprechenden Pinseln sind bezüglich Individualität für größere, aber auch kleinere Anstriche keine Grenzen gesetzt. Das Set enthält daher Pinsel, zum Auftragen von Imprägnierung, Farbe und Lasuren.
  • Schraubzwinge 500 x 120 mm
    Die Bohlen werden beim Aufbau als Bohlenkränze nach und nach aufeinandergelegt. Die Schraubzwingen fixieren die Bohlen während des Vorgangs und halten diese gerade, damit dir der perfekte Aufbau gelingt.
  • Skelett-Kartuschenpresse und transparentes Acryl
    Lassen dir die Freude am neuen Produkt nicht durch Feuchtigkeit aufgrund undichter Stellen nehmen! Mit der Kartuschenpresse wird die beigefügte, transparente Acryl-Dichtmasse nahezu spurenlos zum Abdichten auf die jeweiligen Stellen aufgetragen.

€ 99,00

PGH Fussbodenträger Kunststoff - Verstellbereich 3 - 6 cm

Mehr Details anzeigen

PGH Fussbodenträger Kunststoff

Dieser Fußbodenträger aus neuem Kunststoff ist flexibel einsetzbar und in der Höhe verstellbar. So kann jeder unebene Untergrund ausgeglichen werden.

Artikeldetails:

  • Maße: ca. 16 x 16 x 5 cm
  • Material: Kunststoff
  • Anzahl: 1
  • Abstand der einzelnen Fußbodenträger: ca. 30 cm 
  • in zwei unterschiedlichen Verstellbereichen erhältlich
  • Höchstbelastung 450 kg bzw. 1400 kg
  • in Kombination mit Fußboden/Fundamenthölzer zu nutzen

€ 29,00

KSK Dachbahn 0,5 x 5 m -

Mehr Details anzeigen

KSK Dachbahn 0,5 x 5 m

Mit der selbstklebenden Bitumendachbahn gelingt die Dachabdichtung ganz einfach – ohne Flamme, ohne Stress! Ideal für Gartenhäuser, Saunahäuser oder Garagen – schnell, sicher und dauerhaft dicht.

· Abmessung: 0,5 x 5 m

· Stärke: ca. 1,5 mm

· Nutzbar für Dachneigungen ab 5°

· Verarbeitungstemperatur: +15 bis +35 °C

· Farbe: Anthrazit

€ 59,00

Premium EPDM Dacheindeckung Nr. 32 - 5,03 x 5,8 m

Mehr Details anzeigen

Premium EPDM Dacheindeckung Nr. 32 - 5,03 x 5,8 m

EPDM Dachfolien sind ideal geeignet als Dacheindeckung für Gartenhäuser, Gerätehäuser und Carports. Sie eignen sich außerdem als Untergrund für eine Dachbegrünung unter Beachtung der maximalen Dachlast. EPDM Folien ersetzen die klassische Teerpappeindeckungimmer mehr. Aufgrund der Nahtlosigkeit und dem dehnfähigen Material werden Anwendungsfehler auf ein Minimum reduziert.

Mit unserem EPDM-Folien-Set bekommst du eine Dacheindeckung, die in Sachen Langlebigkeit kaum zu übertreffen ist. Für die Verlegung einfach den Flächenkleber auf den gesäuberten Dachbrettern direkt aufbringen, Folie andrücken und das Gartenhausdach bleibt zuverlässig dicht - und das garantiert für die nächsten 20 Jahre bei ordnungsgemäßem Gebrauch (Materialgewährleistung des Herstellers). Wir empfehlen dir, zur Abdeckung der Dachblendbretter die ebenfalls im Zubehör erhältliche Winkelproflie zu verwenden.

 

20 Jahre Materialgarantie vom Hersteller

EPDM hat eine Lebenserwartung von mehr als 50 Jahre

zugelassene Dachabdichtung

recyclebar - Entsorgung im eigenen Hausmüll möglich

wurzelfest - optimal zur späteren Grünbedachung

leichte Verlegung - kein Spezialwerkzeug wird benötigt (z.B. Gasbrenner oder Schweißgeräte)

Abdichtung ohne Naht in einem Stück

einfach - sicher - dauerhaft - nachhaltig

 

Artikelbeschreibung:

  • Foliengröße: 5,03m x 5,8m
  • Stärke 1,2 mm
  • Flächengewicht: 1,5 kg/m²
  • hohe Temperaturstabilität von -45°C bis +130°C
  • Widerstandsfähigkeit gegen Wind und Wetter
  • UV-beständig
  • Ozonbeständig
  • Wurzelbeständig
  • Wartungsfrei
  • Begehbar
  • frei von Weichmachern
  • aus einem Stück gefertigt, das gibt 100% Sicherheit auf Dichtigkeit
  • Dauerhaft elastisch, Reißdehnung > 300%
  • Ideal als Untergrund für Dachbegrünungen
  • Für die Dauerhaftigkeit Ihrer Dacheindeckung wird geraten, die offenen Fugen mit Winkelprofilen oder Alu-Leisten abzudecken, um zu verhindern, dass Feuchtigkeit über die Randbereiche langfristig eintreten könnte.

Lieferumfang:

  • EPDM-Planenzuschnitt von der Rolle
  • benötigter Flächenkleber auf Wasserbasis zur Verklebung auf Holz und Holzwerkstoffe (nicht geeignet für Untergründe wie Styrodur), Farbe Weiß
  • Walze mit Griff

 

So wird die richtige Foliengröße für Gartenhaus,Carport oder Überdachung ermittelt:

Wand- oder Pfostenmaß
+ Größe vom Dachüberstand x 2
+ 15-20 cm Blendenhöhe x 2
= gewünschte Foliengröße

Schau dir hier das Montagevideo an.

€ 829,00

Zubehör für dein Produkt

Windverankerungs-Set für Blockbohlen

Mehr Details anzeigen

Windverankerungs-Set für Blockbohlen

Windverankerungs-Set für Blockbohlenhäuser

Wir empfehlen in besonders starken Windregionen dein Gartenhaus durch ein zusätzliches
Windverankerungs-Set zu sichern. Das Set besteht aus stabilen Gewindestangen, welche
mit Hilfe von speziellen Metallwinkeln und Spannungsfedern in allen vier Ecken von Außen
oder Innen in Ihren Gartenhaus montiert werden. Die Gewindestangen verbinden die unterste
und oberste Blockbohle und verhindert somit ein Auseinandergehen der einzelen Blockbohlen
und halten diese somit bei Sturm zusammen. Da man die einzelnen Blockbohlen nicht unter-
einander verschrauben sollte, ist die Sicherung mit diesem Set die beste Möglichkeit die 
Bohlen untereinander zu verbinden. 

Im Set enhalten sind 

8 x Gewindestangen M6 x 1000mm (passend zur Montage an allen 4 Ecken, je 2 Stangen/Ecke) inkl. Verbindungsmuffen, Montagewinkel, Spannungsfedern und Montagematerial mit Schrauben. 

Das Montagematerial (Schrauben) ist für Blockbohlenhäuser von einer Wandstärke vom 19-45 mm
geeignet. Wenn du das Set bei starken Blockbohlen (über 45 mm) verwendest, müssen die
Schrauben bauseits gegen längere Schrauben ausgetauscht werden !!

Für eine signifikante Verbesserung der Standfestigkeit empfehlen wir eine Kombination aus diesem Set und dem
Sturmwinkel Set für eine Befestigung auf der Fundamentplatte. 

 Tipps und Tricks zur fachgerechten Montage der Sturmwinkel bzw. des Winderverankerungs Sets sind in diesem Infovideo zu finden:

 

€ 49,00

Holz Bar

Mehr Details anzeigen

Holz Bar

 Artikelbeschreibung:

  • Außenmaß: 200 x 75 cm
  • Sockelmaß: 190 x 65 cm
  • Gesamthöhe: ca. 110 cm
  • Tresentiefe: ca. 45 cm
  • inkl. Aufbauanleitung & Montagematerial
  • Materialstärke: 40 mm
  • Seitenverkehrte Montage möglich

€ 159,00

Komfort Garantie

Mehr Details anzeigen

Komfort Garantie

Welche Produkte sind durch die Gartenhaus.com Garantie abgedeckt?

Unsere Komfort Garantie gilt ausschließlich für privat genutzte Produkte. Dazu zählen: 

  • Garten- & Gerätehäuser – dein Rückzugsort oder einfache Lösung zur Aufbewahrung
  • Saunen – für wohltuende Entspannung und Wellness im eigenen Zuhause
  • Kinderspielgeräte – Spiel und Spaß für Groß und Klein
  • Holzpavillons - für dein persönliches Paradies im Garten
  • Carports – zuverlässiger Schutz für dein Fahrzeug vor Regen, Schnee und Sonne
  • Garagen – sicherer Stellplatz mit zusätzlichem Stauraum für deine Bedürfnisse

Mit unserer Garantie kannst du dich auf die Qualität deines Produkts verlassen. Sollte doch einmal etwas nicht passen, sind wir schnell und unkompliziert für dich da.

Was beinhaltet die Komfort Garantie?

Dank unserer Komfort Garantie musst du dir keine Sorgen machen. Geht etwas kaputt, bekommst du von uns die passenden Ersatzteile für folgende Bereiche: 

  • Türen (Glasschäden bis zu 200 €)
  • Fenster (Glasschäden bis zu 200 €)
  • Dachrinne – für einen sicheren Wasserablauf
  • Türschloss – für zuverlässigen Schutz
  • Beschläge – falls kleine, aber wichtige Teile ersetzt werden müssen
  • Dacheindeckung (Dachpappe, Dachschindeln, KSK) – für optimalen Schutz vor Wind und Wetter

Wichtig:

Die Komfort-Garantie umfasst ausschließlich die Lieferung der Ersatzteile. Der Einbau liegt in deiner Hand. Für eine professionelle Montage wähle die Premium-Garantie. 

Mit der Komfort Garantie bist du gut abgesichert und kannst dein Gartenhaus.com-Produkt unbesorgt genießen.

Garantiebedingungen

Alle Details und mehr Infos zur Komfort Garantie

Noch Fragen? Unser Kundenservice ist jederzeit für dich da!

€ 69,00

Premium Garantie

Mehr Details anzeigen

Premium Garantie

Für welche Produkte gilt die Gartenhaus.com Garantie?

Unsere Premium Garantie gilt ausschließlich für Produkte, die du privat nutzt. Dazu gehören:

  • Garten- & Gerätehäuser – dein Rückzugsort oder einfache Lösung zur Aufbewahrung
  • Saunen – für wohltuende Entspannung und Wellness im eigenen Zuhause
  • Kinderspielgeräte – Spiel und Spaß für Groß und Klein
  • Holzpavillons - für dein persönliches Paradies im Garten
  • Carports – zuverlässiger Schutz für dein Fahrzeug vor Regen, Schnee und Sonne
  • Garagen – sicherer Stellplatz mit zusätzlichem Stauraum für deine Bedürfnisse

Mit unserer Garantie kannst du sicher sein, dass dein Produkt hochwertig verarbeitet ist und wir dir im Fall der Fälle schnell und unkompliziert weiterhelfen.

Was beinhaltet die Premium Garantie?

Unsere Premium Garantie sorgt dafür, dass du dich entspannt zurücklehnen kannst. Falls ein Problem auftritt, schicken wir dir Ersatzteile für folgende Komponenten:

  • Türen (Glasschäden bis zu 200 €)
  • Fenster (Glasschäden bis zu 200 €)
  • Dachrinne – für einen sicheren Wasserablauf
  • Türschloss – für zuverlässigen Schutz
  • Beschläge – falls kleine, aber wichtige Teile ersetzt werden müssen
  • Dacheindeckung (Dachpappe, Dachschindeln, KSK) – für optimalen Schutz vor Wind und Wetter

Extra-Service in der Premium Garantie:

Inklusive Handwerksservice & Ersatzteileinbau: Du bekommst nicht nur die Ersatzteile, sondern auch den professionellen Einbau dazu!

Mit unserer Premium Garantie bist du rundum abgesichert – für langanhaltende Freude an deinem Produkt.

Garantiebedingungen

Alle Details und mehr Infos zur Premium Garantie

Noch Fragen? Unser Kundenservice ist jederzeit für dich da!

 

€ 579,00

PGH Solarbetriebener Lüfter

Mehr Details anzeigen

PGH Solarbetriebener Lüfter

Praktisches Lüften mit solarbetriebenem Ventilator – hervorragend für die Grundlüftung in Gartenhäusern, Abstellräumen, Garagen und dergleichen geeignet. Bist du wie viele andere Menschen auch neugierig auf Solarzellenlösungen? Mit solarbetriebenen Lüftern vermeidest du sowohl elektrische Installations- als auch Betriebskosten. Die Montage erfolgt schnell und einfach. Außerdem tust du etwas Gutes für die Umwelt!

 

Weitere Informationen

 

  • Lüftet und reduziert das Risiko von Feuchtigkeitsschäden und Schimmel
  • Reibungslose und schnelle Montage 
  • Umweltfreundliche Alternative 
  • Vollautomatisch 
  • Kann als Abluft- oder Zuluftventil verwendet werden 
  • Wartungsfrei 

 

Überlegst du, wie du die Belüftung in deinem Gartenhaus, in der Garage oder in einem Lagerraum optimieren kannst? Dann könnte unsere Lüftungen mit solarbetriebenen Ventilatoren eine Lösung für dich sein. Diese Art von Lüftung funktionieren in allen Arten von Häusern, unabhängig davon, ob diese isoliert sind oder nicht. Die Montage ist innerhalb kürzester Zeit erledigt! 

Der solarbetriebene Ventilator belüftet den Raum und verringert das Risiko von Feuchtigkeit und Feuchtigkeitsschäden und Schimmel. Er erscheint mit zwei verschiedenen Lüftern und kann somit entweder als Ab- oder Zuluftventil verwendet werden. Für Lagerbereiche empfehlen wir beispielsweise die Verwendung des solarbetriebenen Lüfters als Abluftventil, denn in nicht isolierten Häusern ist kein Zuluftventil erforderlich. In isolierten Gartenhäusern kannst du ein Standard-Zuluftventil hinzufügen oder zwei solarbetriebene Ventile verwenden – eines für Abluft und eines für Zuluft. Denke in diesem Fall daran, das Abluftventil so zu platzieren, dass es die meiste Sonne bekommt.

 

Technische Daten

- Lüfterkapazität:  60 m³/h

- Spannung Solarpanel:  3,5 V

- Maße Solarpanel:  240 x 210 mm

- Wandloch:  110 mm Durchmesser

- Gewicht:  0,75 g

€ 49,00

Zubehör für den Außenbereich

Rinneneinhang

Mehr Details anzeigen

Rinneneinhang

Ein Rinneneinhang ist der fachgerechte Abschluss an der Dachtraufe. Er ist das Übergangsblech von der Dachfläche zur Dachrinne. Der Einsatz sorgt für kontrollierten Wassereinlauf in die Dachrinne.

Material: Stahl verzinkt, pulverbeschichtet

Maße: A:60mm B:125mm D:15mm

Länge:200cm Stärke:0,50mm

Schrauben sind nicht im Lieferumfang. Passende Spenglerschrauben sind hier.

€ 49,00

PGH Premium Gartenhaus Isoliergrund - VOC-Gewicht:0,066

Mehr Details anzeigen

PGH Premium Gartenhaus Isoliergrund - VOC-Gewicht:0,066

PGH Isoliergrund ist der wasserbasierte, weiße Spezialgrundanstrich für Holz im Innen- und Außenbereich.

PGH Isoliergrund verhindert durch seine spezielle Rezeptur das Durchschlagen von wasserlöslichen, färbenden Holzinhaltsstoffen und damit eine Fleckenbildung an der Oberfläche des Anstrichs. Er ist außen und innen einsetzbar auf allen Laub- und Nadelhölzern. Kann auch zur Grundierung von MDF-, OSB- und Spanplatten eingesetzt werden.

Anwendungsgebiete: 

Holz im Innen- und Außenbereich z.B. Laub- und Nadelhölzer, sowie MDF-, OSB- und Spanplatten

Eigenschaften:

  • isolierende Vorbehandlung für innen und außen
  • gegen das Durchschlagen von Holzinhaltsstoffen
  • wasserbasiert
  • weiß

Reichweite:

  • 2,5l reichen für ca. 20-25 m² bei einmaligem Anstrich

€ 29,99

PGH Premium Gartenhaus Wohnraumlasur - VOC-Gewicht:0,082

Mehr Details anzeigen

PGH Premium Gartenhaus Wohnraumlasur - VOC-Gewicht:0,082

PGH Wohnraumlasur ist die seidenglänzende, schnell trocknende und wasserverdünnbare Holzveredelung für innen.

PGH Wohnraumlasur ist umweltschonend, weil schadstoffarm, leicht zu verarbeiten und wasserdampfdurchlässig. Sie ist Wasser- und Schmutz abweisend und schützt so das Holz. Sie kann aber auch als Grundanstrich für nachfolgende Lackierungen mit wasserbasierten Lacken eingesetzt werden. Aufgrund ihrer tropfgehemmten Einstellung auch ideal für Arbeiten über Kopf.

Anwendungsgebiete: 

Holz im Innenbereich z.B. Saunen (nur außen), Möbel, Türen oder Holzverkleidungen

Eigenschaften:

  • lasierende Holzveredelung für innen
  • wasserabweisend und feuchtigkeitsregulierend
  • schützt vor Verschmutzung
  • seidenglänzend

Reichweite:

  • 2,5l reichen für ca. 23-28 m² bei einmaligem Anstrich

€ 29,99

PGH Premium Gartenhaus Wetterschutzfarbe - pastellblau

Mehr Details anzeigen

PGH Premium Gartenhaus Wetterschutzfarbe

PGH Wetterschutzfarbe ist die seidenglänzende, schnell trocknende und wasserverdünnbare Holzdeckfarbe für außen.PGH Wetterschutzfarbe ist leicht zu verarbeiten, hoch wetterbeständig und wasserdampfdurchlässig.

PGH Wetterschutzfarbe ist UV-beständig und nach einer entsprechenden Untergrundvorbehandlung und Grundierung ideal geeignet für Anstriche auf Nadel- und Laubhölzern im Außenbereich. Enthält einen integrierten Oberflächenschutz gegen Algen- und Pilzbefall. Nicht für Sitzmöbel, Tischplatten oder Flächen mit Lebensmittelkontakt einsetzen.

Anwendungsgebiete:

Holz im Außenbereich z.B. Gartenhäuser, Carports, Zäune oder Saunen

Eigenschaften:

  • deckender Schutzanstrich für außen
  • UV- und wetterbeständig
  • feuchtigkeitsregulierend
  • seidenglänzend

Reichweite:

  • 2,5l reichen für ca. 13-20 m² bei einmaligem Anstrich

Achtung: Farbdarstellung kann je nach Bildschirm variieren und ist somit nicht verbindlich!

€ 39,99

Dachrinnenset RG 100 - für 1 Dachseite bis 9 m - anthrazit metallic

Mehr Details anzeigen

Dachrinnenset RG 100 - für 1 Dachseite bis 9 m

Für Gartenhäuser aus Holz mit Seitenlänge bis 9 m, komplettes Set für 1 Holzhausseite

Dachrinnenset für Gartenhäuser mit Stirnbrett - bei Gartenhäusern ohne Stirnbrett muss dieses bauseits für die Montage gestellt werden

Marley Dachrinnen-Sets schützen Wände und Fundamente von Garten- und Blockhäusern sicher und zuverlässig vor Schäden durch Regenwasser.

Vorteile:

  • Komplettes Set mit Rinnen, Fallrohren und Befestigungszubehör
  • Leicht zu montieren
  • Alles komplett im Set
  • witterungs-, UV- und temperaturbeständig
  • Schlagfester, hochwertiger Kunststoff
  • Top Qualität - Made in Germany
  • 10 Jahre Garantie

Set-Inhalt:

  • 4x Dachrinne, halbrund 2 m RG 100
  • 2x Dachrinne, halbrund 1 m RG 100
  • 4x Rinnenverbindungsschale RG 100
  • 4x Endstück für links und rechts RG 100
  • 18x Rinnenhalter RG 100
  • 18x Verstellwinkel für Rinnenhalter
  • 2x Stutzen RG 100 / DN 75
  • 4x Rohrbogen DN 75, 45°
  • 2x Fallrohr DN 75 2 m
  • 4x Rohrschelle mit Ringschraube

€ 349,00

Holz Terrassendielen Set für 3 m² in imprägnierter Kiefer

Mehr Details anzeigen

Holz Terrassendielen Set für 3 m² in imprägnierter Kiefer

Das hochwertige Terrassendielen Set aus imprägnierter Kiefer besticht durch seine sehr breite Anwendungsmöglichkeit. Das Set lässt sich individuell und sehr leicht auf jede Terrasse anpassen und kann ganz einfach mit weiteren Sets in der Größe erweitert werden. Das Holz der Dielen und der Unterkonstruktion überzeugt durch eine gute Dauerhaftigkeit. Die Schrauben sind aus hochwertigem und rostfreiem Edelstahl. So hast du lange Freude an deiner Terrasse.

 Einfache Montage

✓ Individuell anpassbar

✓ Dauerhaftes Holz

✓ Rostfreie Edelstahlschrauben

Praktisch - direkte Lieferung zu dir nach Hause

Artikeldetails:

  • Länge der Dielen: 3 m (Paketinhalt: 3,045 m²)
  • Anzahl Dielen/Paket: 7
  • Profilmaß: 28 x 145 mm
  • Profilierung: einseitig grob genutet, einseitig gehobelt
  • Material: Kiefer KDI

Im Lieferumfang enthalten:

  • 7 x kesseldruckimprägnierte Kiefer-Terrassendielen je 3 m (Paketinhalt: 3,045 m²); Profil: 28 x 145 mm
  • 4 x Unterkonstruktionsbalken je 3 m; Profil 45 x 7 mm
  • 120 Stk. Edelstahlschrauben 5 x 50 mm für Holzdielen
  • 20 Stk. Edelstahlschrauben 5 x 70 mm für Unterkonstruktion

Einfache Montage:

Das 3 m² Terrassendielenset besteht aus 7 Stk. kesseldruckimprägnierten Kiefer-Terrassendielen je 3 m, 4 Stk. Unterkonstruktionsbalken je 3 m, 120 Stk. Edelstahlschrauben 5 x 50 mm für die Dielen sowie 20 Stk. Edelstahlschrauben 5 x 70 mm für die Unterkonstruktion. Das Set kann mit weiteren Sets derselben Holzart individuell zu größeren Terrassen kombiniert werden.

Das Terrassendielen-Set ist ausschließlich für den privaten Gebrauch geeignet und nicht für gewerbliche Zwecke zu verwenden. Bitte benutze das Terrassendielen-Set nur wie in der Anleitung beschrieben. Andernfalls kann eine unsachgemäße Verwendung zu Personen- oder Sachschäden führen.

Die Terrassendielen und Unterkonstruktionsbalken (UK) können individuell zugeschnitten werden. Die UK bildet einen Rahmen mit Zwischenbalken. Dieser Rahmen wird mit Gefälle und Distanzklötzen oder z.B. Terrassenplatten oder Rasensteinen auf dem Untergrund ausgerichtet und fixiert. Anschließend werden die Dielen ausgerichtet und mit der UK verschraubt.

1. Der Untergrund sollte aus einer ausreichend verdichteten und frostsicheren Fläche mit geringem Gefälle von 2-3 % bestehen. Ggf. kann der Untergrund zusätzlich mit einem Unkrautvlies vorbereitet werden.

2. Die UK Balken werden zugesägt und gem. Abb. mit 5 x 70 mm Edelstahlschrauben verschraubt (ggf. vorbohren). Die Abstände der Zwischenbalken sollten nicht größer als 45-50 cm sein. Der UK Rahmen wird nun auf dem Untergrund mit Gefälle auf den Auflagepunkten ausgerichtet und kann ggf. mit Dübeln oder Schrauben fixiert (nicht im Lieferumfang enthalten) werden. Die Auflagepunkte sollten in Längs- und Querrichtung ca. 50-60 cm entfernt sein.

3. Säge die Terrassendielen zu. Die Dielen sollten an den Enden ca. 2-10 cm über der UK überstehen. Längsseitig sollten 4 cm nicht überschritten werden. Verschraube die Dielen mit den 5 x 50 mm Edelstahlschrauben. Bitte halte den Mindestabstand der Verschraubungspunkte zu den Randbereichen der Diele von min. 25 mm ein, um ein Reißen des Holzes zu vermeiden (ggf. vorbohren). Verschraube die Dielen an allen Kreuzungspunkten mit der UK. Der Fugenabstand der Dielen sollte 5-8 mm betragen.

4. Es empfiehlt sich, die Terrassendielen vor oder nach der Montage mit einer Lasur oder Öl zu behandeln, um diese besser gegen Witterungseinflüsse zu schützen.

€ 99,00

Holz Terrassendielen Set für 3m² in RedClass

Mehr Details anzeigen

Holz Terrassendielen Set für 3m² in RedClass

Das hochwertige Terrassendielen Set aus Red-Class besticht durch seine sehr breite Anwendungsmöglichkeit. Das Set lässt sich individuell und sehr leicht auf jede Terrasse anpassen und kann ganz einfach mit weiteren Sets in der Größe erweitert werden. Das Holz der Dielen und der Unterkonstruktion überzeugt durch eine gute Dauerhaftigkeit. Die Schrauben sind aus hochwertigem und rostfreiem Edelstahl.So hast du lange Freude an deiner Terrasse.

 Einfache Montage

✓ Individuell anpassbar

✓ Dauerhaftes Holz

✓ Rostfreie Edelstahlschrauben

Praktisch - direkte Lieferung zu dir nach Hause

Set-Inhalt:

  • 7 x Holz-Terrassendielen je 3m
  • 4 x 3m Unterkonstruktionsbalken (4,5x7,0cm) 
  • 120 x Edelstahlschrauben 5x50mm für Holzdielen
  • 20 x Edelstahlschrauben 5x70mm für Unterkonstruktion

Artikeldetails:

  • Länge der Dielen: 300 cm (Paketinhalt: 3,045 m²)
  • Anzahl Dielen/Paket: 7
  • Profilmaß: 28 x 145 mm
  • Profilierung: einseitig grob genutet, einseitig gehobelt
  • Material: Red-Class

Im Lieferumfang enthalten:

  • 7x Dielen: 300 cm (Paketinhalt: 3,045 m²); Profil: 28 x 145 mm
  • 4x 3 Meter Unterkonstruktion; Profil 45 x 7 mm
  • 120 Stk. Edelstahlschrauben 5 x 50 mm
  • 20 Stk. Edelstahlschrauben 5 x 70 mm

Einfache Montage:

Das 3m² Terrassendielenset besteht aus 7 Stk. Holz-Terrassendielen a 3m, 4 Stk. Unterkonstruktionsbalken a 3m, 120 Stk. Edelstahlschrauben 5x50 für die Dielen sowie 20 Stk. Edelstahlschrauben 5x70 für die Unterkonstruktion. Das Set kann mit weiteren Sets derselben Holzart individuell zu größeren Terrassen kombiniert werden. Das Terrassendielen-Set ist ausschließlich für den privaten Gebrauch geeignet und nicht für gewerbliche Zwecke zu verwenden. Bitte benutze das Terrassendielen-Set nur wie in dieser Anleitung beschrieben. Andernfalls kann eine unsachgemäße Verwendung zu Personen- oder Sachschäden führen.

Die Terrassendielen und Unterkonstruktionsbalken (UK) können individuell zugeschnitten werden. Die UK bildet einen Rahmen mit Zwischenbalken. Dieser Rahmen wird mit Gefälle und Distanzklötzen oder z.B. Terrassenplatten oder Rasensteinen auf dem Untergrund ausgerichtet und fixiert. Anschließend werden die Dielen ausgerichtet und mit der UK verschraubt.

1. Der Untergrund sollte aus einer ausreichend verdichteten und frostsicheren Fläche mit geringem Gefälle von 2-3 % besehen. Ggf. kann der Untergrund zusätzlich mit einem Unkrautvlies vorbereitet werden.

2. Die UK Balken werden zugesägt und gem. Abb. mit 5x70 Edelstahlschrauben verschraubt, ggf. vorbohren. Die Abstände der Zwischenbalken sollten nicht größer als 45-50 cm sein. Der UK Rahmen wird nun auf dem Untergrund mit Gefälle auf den Auflagepunkten ausgerichtet und kann ggf. mit Dübeln oder Schrauben fixiert (nicht im Lieferumfang enthalten) werden. Die Auflagepunkte sollten in Längs- und Querrichtung ca. 50-60cm entfernt sein.

3. Säge die Terrassendielen zu. Die Dielen sollten an den Enden ca. 2-10 cm über der UK überstehen. Längsseitig sollten 4 cm nicht überschritten werden. Verschraube die Dielen mit den 5x50 Edelstahlschrauben. Bitte halten den Mindestabstand der Verschraubungspunkte zu den Randbereichen der Diele von min 25 mm ein, um ein Reißen des Holzes zu vermeiden – ggf. vorbohren. Verschraube die Dielen an allen Kreuzungspunkten mit der UK. Der Fugenabstand der Dielen sollte 5-8 mm betragen.

4. Es empfiehlt sich, die Terrassendielen vor oder nach der Montage mit einer Lasur oder Öl zu behandeln, um diese besser gegen Witterungseinflüsse zu schützen.

€ 129,00

Marley Traufstreifen für Flachdach 2 x 1 m

Mehr Details anzeigen

Marley Traufstreifen für Flachdach 2 x 1 m

Produktbeschreibung:

Die Winkelausführung des Traufstreifens eignet sich beim Steildach in Verbindung mit verstellbaren Rinneneisen. Der Traufstreifen ragt dabei in die Dachrinne hinein. Die Feder des Rinneneisens ist zu kürzen und der Traufstreifen mit Pappnägeln zu befestigen.

 

Universell einsetzbar

✓ Einfache und schnelle Montage

Ansprechendes Design

 

Produktdetails:

  • Farbe: Grau

€ 49,00

Zubehör für den Innenbereich

PGH Hartwachsöl 2,5 L

Mehr Details anzeigen

PGH Hartwachsöl 2,5 L

Hochwertiges Hartwachsöl für Innenbereich

Unser Hartwachsöl bietet eine hochwertige Lösung für die Grundierung und Behandlung verschiedener saugfähiger Untergründe im Innenbereich. Mit einer seidenmatten, strapazierfähigen Oberfläche, die natürliche Strukturen belebt und Tönungen vertieft, bietet es beste Ergebnisse für Holz-, Kork- und Steinböden sowie andere Oberflächen. Einfach in der Anwendung und getestet gemäß höchsten Standards, ist es die ideale Wahl für professionelle Ergebnisse.

Artikeldetails zum Hartwachsöl:

  • Anwendung: Grundierung und Behandlung saugfähiger Untergründe im Innenbereich.

  • Eigenschaften: Seidenmatte Oberfläche, vertieft die Tönung, wasserabweisend.
  • Geprüft auf Chemikalienbeständigkeit und Migration.
  • Inhaltsstoffe: Leinöl, Holzöl, Ricinöl, Naturharzester, weitere.
  • VOC-Gehalt: Max. 440 g/l (EU-Grenzwert: max. 500 g/l).
  • Verarbeitung: Vor Gebrauch aufschütteln, dünn auftragen, polieren.
  • Trocknungszeit: Ca. 6-12 Std., überstreichbar nach 16-24 Std.
  • Verbrauch: 30-50 g/m²; Ergiebigkeit ca. 20 m²/l.
  • Lagerung: Kühl, trocken, ungeöffnet min. 24 Monate haltbar.
  • Entsorgung: Gemäß örtlichen Vorschriften.
  • Hinweise: Farbangaben unverbindlich, Probeanstrich empfohlen.

 

 

€ 89,00

Basic Ordnungs-Set

Mehr Details anzeigen

Basic Ordnungs-Set

Dieses Basic Ordnungs-Set ist das i-Tüpfelchen für Ihr neues Gartenhaus. Dank unseres sorgfältig zusammengestellten Ordnungssets stehen Besen, Säge und Co nicht mehr im Weg rum, sondern können bequem an den Wänden verstaut werden. Das ist nicht nur platzsparend, sondern garantiert auch ein einladendes und aufgeräumtes Raumgefühl.

Die im Set enthaltenen Haken haben eine hohe Tragfähigkeit und eignen sich hervorragend zum Sortieren und Verstauen von: Leiter, Eimer, Verlängerungskabel, Gießkanne, Gartenschlauch, Harke, Schaufel, etc., bis hin zum Fahrrad.

Das Ordnungsset besteht aus:

  • 2 x Standardhaken aus verzinktem Stahlrohr, rostfrei, Ø 16 mm, Tiefe 80 mm, Traglast bis zu 60 kg
  • 2 x Standardhaken, aus verzinktem Stahlrohr, rostfrei, Ø 16 mm, Tiefe 210 mm, Traglast bis zu 60 kg
  • 2 x Standardhaken, aus verzinktem Stahlrohr, rostfrei, Ø 16 mm, Tiefe 285 mm, Traglast bis zu 60 kg
  • 5 x kleine Einzelhaken aus Stahl, Ø 8 mm, Höhe 8 cm, Traglast von bis zu 50 kg
  • 1 x ummantelter, roter Doppelhaken, Ø 10 mm, Tiefe 70 mm, Traglast von bis zu 80 kg
  • 1 x Halter für 1 Handgriffe, Durchmesser 16-32 mm
  • 1 x Fahrradhaken mit Befestigung durch das Rad
  • 1 x Haken für 1 Handwerkzeug, Ø 16 mm, Höhe 158 mm, Breite 166 mm, Tiefe 115 mm, Traglast bis zu 30 kg

€ 29,00

Standard Ordnungs-Set

Mehr Details anzeigen

Standard Ordnungs-Set

Dieses Ordnungs-Set ist das i-Tüpfelchen für Ihr neues Gartenhaus. Dank unseres sorgfältig zusammengestellten Ordnungssets stehen Besen, Säge und Co nicht mehr im Weg rum, sondern können bequem an den Wänden verstaut werden. Das ist nicht nur platzsparend, sondern garantiert auch ein einladendes und aufgeräumtes Raumgefühl.

Die im Set enthaltenen Haken haben eine hohe Tragfähigkeit und eignen sich hervorragend zum Sortieren und Verstauen von: Leiter, Eimer, Verlängerungskabel, Gießkanne, Gartenschlauch, Harke, Schaufel, etc., bis hin zum Fahrrad. Einige von den Haken sind außerdem zum Schutz ummantelt.

Das Ordnungsset besteht aus:

  • 2 x umhüllter Standardhaken, aus verzinktem Stahlrohr, rostfrei, Ø 16 mm, Tiefe 80 mm, Traglast 60 kg
  • 2 x umhüllter Standardhaken, aus verzinktem Stahlrohr, rostfrei, Ø 16 mm, Tiefe 210 mm, Traglast 60 kg
  • 2 x umhüllter Standardhaken, aus verzinktem Stahlrohr, rostfrei, Ø 16 mm, Tiefe 285 mm, Traglast 60 kg
  • 5 x Einzelhaken aus verzinktem Stahl, Ø 9 mm, Höhe 125 mm, Breite 40 mm, Traglast von bis zu 50 kg
  • 1 x umhüllter, schwarzer Doppelhaken, Ø 10 mm, Tiefe 165 mm, Traglast von bis zu 80 kg
  • 1 x Multi-Konzept-Hakenträger mit 3 Aufhängungspunkten, Ø 16 mm, Höhe 35 mm, Länge 27 mm, Tiefe 120 mm
  • 1 x umhüllter Fahrradhaken mit Befestigung durch das Rad
  • 5 x Mehrzweckhalter, Ø 10 mm, Tiefe 70 mm, Traglast von bis zu 80 kg
  • 1 x Haken für 3 Handwerkzeug, Ø 16-32 mm, Höhe 158 mm, Breite 166 mm, Tiefe 115 mm, Traglast bis zu 30 kg

€ 49,00

Premium Ordnungs-Set

Mehr Details anzeigen

Premium Ordnungs-Set

Dieses Ordnungs-Set ist das i-Tüpfelchen für Ihr neues Gartenhaus. Dank unseres sorgfältig zusammengestellten Ordnungssets stehen Besen, Säge und Co nicht mehr im Weg rum, sondern können bequem an den Wänden verstaut werden. Das ist nicht nur platzsparend, sondern garantiert auch ein einladendes und aufgeräumtes Raumgefühl.

Die im Set enthaltenen Haken haben eine hohe Tragfähigkeit und eignen sich hervorragend zum Sortieren und Verstauen von: Leiter, Eimer, Verlängerungskabel, Gießkanne, Gartenschlauch, Harke, Schaufel, etc., bis hin zum Fahrrad. Einige von den Haken sind außerdem zum Schutz stark ummantelt.

Das Ordnungsset besteht aus:

  • 2 x Haken in Rohr umhüllt, Ø 20 mm, Tiefe 150 mm, Traglast 90 kg
  • 5 x verzinkte Flacheisenhaken, Stahl 1,2 mm Stärke, Breite 25 mm, Tiefe 25 mm, Höhe 73 mm
  • 1 x Pro Halter für 3 Handgriffe , Ø 16 - 40 mm, Tiefe 285 mm, auf der Leiste verschiebbar
  • 1 x Gestellrahmen mit 7 Minihaken in lackiertem Stahldraht
  • 1 x Doppelhaken, Ø 16 mm x 2, Länge 250 mm, Traglast von bis zu 80 kg
  • 1 x Fahrradhaken in Rohr umhüllt mit Befestigung durch das Rad, Ø 20 mm
  • 5 x Mehrzweckdoppelhaken, Breite 75 mm, Tiefe 48 mm, Höhe 60 mm, Traglast von bis zu 20 kg
  • 1 x Doppelhaken in Rohr, Ø 20 mm, Länge 200 mm, Traglast bis zu 70 kg

€ 99,00

Fußbodendämmungspaket für Garten- und Saunahäuser von 18-21 m²

Mehr Details anzeigen

Fußbodendämmungspaket für Garten- und Saunahäuser von 18-21 m²

Das Fußboden-Dämmungsset besteht aus hochwertigen Hartschaum Platten (1265 x 615 x 30 mm), einer Dampfbremsfolie, einem hochwertigen Multifunktions-Tape sowie einem Haltewinkel und Schrauben.

Funktionsweise

Die Dämmplatten müssen ggf. zurechtgeschnitten und anschließend in die Hohlräume der Fundamentbalken des Gartenhauses oder der Gartensauna gelegt werden. Anschließend wird die Dampfsperre aufgebracht. Die Schnittflächen der Folie sollten mit dem Tape luftdicht verklebt werden. Durch diese Konstruktionsweise bekommst du einen optimal gedämmten Boden für dein Gartenhaus oder deine Gartensauna.

Für das Verlegen der Dämmplatten sind Fundamentbalken und Bodenbretter vorausgesetzt. Sind diese nicht im Lieferumfang, bestelle bitte ein Boden-Paket aus dem Zubehör in vorgeschlagender Menge.

€ 849,00

Montage und Services

Montage GartenHaus Schraubsystem Ein-Raum bis 20m² m. Fußb. - Exklusiv - Montage Haus

Mehr Details anzeigen

Montage GartenHaus Schraubsystem Ein-Raum bis 20m² m. Fußb.

GartenHaus Montageservice: Fachgerechte Montage vom Profi zum Bestpreis!

Wähle bequem aus unseren Montage-Sets das für dich passende Gesamtpaket.

Option 1  –  Basic Montage – Haus:

In diesem Set sind enthalten:

·         Der Aufbau des Produktes mit dem kompletten Aufbau ab Oberkante Fundament, inklusive allen im Bausatz enthaltenen Zubehörteilen. Tragewege zum Aufbauort bis 15 m sind im Preis inklusive.

·         Wenn du dich für das Sparset "Montagezubehör und Befestigung" entscheidest, ist auch die Montage dieses Sets inklusive. Wir empfehlen dieses dringend zum sicheren Aufbau. Es schützt dein Produkt effektiv gegen Feuchtigkeit und starken Wind.

Wenn du weiteres Zubehör montieren willst, kannst du das als Zusatzmontage dazu buchen. Die findest du direkt bei deinem Wunschprodukt..

Option 2  – Premium Montage  – Haus und Dacheindeckung:

In diesem Set sind enthalten:

·         Alle Leistungen aus Montage Option 1

·         Zusätzlich enthalten ist das fachgerechte Verlegen von Dachpappe und Dachschindeln, KSK oder EPDM-Folie. Das Material ist nicht im Lieferumfang. Bestelle hierfür eines der vorgeschlagenen Dacheindeckungs-Sets bzw. das Wunschmaterial in der vorgegebenen Menge. Bitte achte auf die richtige Anzahl/Größe der Dachbahn/Folie und Dachabschluss-Profile bzw. -Blenden. Wir beraten dich gern zu den Möglichkeiten!

·         Ein persönlicher Ansprechpartner begleitet dein Projekt von Beauftragung bis zum Abschluss der Montage.

Wenn du weiteres Zubehör montieren willst, kannst du das als Zusatzmontage dazu buchen. Die findest du direkt bei deinem Wunschprodukt..

Option 3 – Exklusiv Montage – Haus und Dacheindeckung + alle optionalen Zusatzmontagen und Sonderwünsche

Wenn du das volle Programm ohne „Wenn“ und „Aber“ willst, ist diese Option genau das Richtige für dich.

In diesem Set sind enthalten:

·         Alle Leistungen der Montage Optionen 1+2

·         Die Zusatzmontage des passenden Dachrinnensets

·         Die Zusatzmontage des Fußbodens (wenn der Fußboden im Lieferumfang des Bausatzes enthalten ist, ist die Montage bereits in der Basic-Option inbegriffen)

·         Verlegung der Bodendämmung

·         Imprägnierung während des Aufbaus (nur notwendig, wenn das Produkt nicht bereits ab Werk mit einer Imprägnierung versehen wurde)

·         Längere Tragewege zum Aufbauort bis 40 m sind im Preis inklusive

·         Wir gehen auf deine individuellen Sonderwünsche ein und finden passende Lösungen

Bitte beachte, dass das zu verbauende Zubehör als optionales Zubehör bestellt werden muss. Wir bieten unseren Montageservice nur für Original-GartenHaus Zubehör an.

Weitere Hinweise:

Imprägnierung: Fachgerechtes (einmaliges) Auftragen von Imprägnierungsmittel (nach Aufbau) an der Außenseite des Produktes. Das Material ist nicht im Lieferumfang. Bestelle bitte hierfür PGH Holzschutzgrund Imprägnierung aus dem Zubehör in vorgeschlagener Menge oder das passende Farbenset.

Die Imprägnierung schafft – in Verbindung mit einer Holzendbehandlung in Form von Deckfarbe oder Lasur – die Basis für langanhaltenden Schutz vor holzabbauenden Pilzen, Bläuebefall, holzzerstörende Insekten/Schimmel. Damit ist der Grundstein für langjährige Freude an deinem Wunschprodukt gelegt! (Die Holzendbehandlung kann erst ca. 24 Stunden nach der Imprägnierung erfolgen und kann daher hier nicht mit angeboten werden.)

Wir weisen an dieser Stelle darauf hin, dass eine Imprägnierung ab Werk – bei vielen Modellen direkt als Variante zu wählen – einen stärkeren Schutz bietet als die Imprägnierung nach dem Aufbau. Bei der Werksimprägnierung wird das Imprägnierungsmittel in der Fertigung maschinell aufgetragen. Hierbei werden insbesondere auch Nut und Feder effektiv geschützt.

Die Imprägnierung des Hauses, ob durch unser Montageteam oder ab Werk, stellt eine Erstbehandlung dar. Für einen optimalen Schutz deines Hauses ist nach einer Trocknungszeit ein Zweitanstrich mit einer geeigneten Lasur - bzw. Deckfarbe nötig. Wir empfehlen dir hierfür unsere qualitätsgeprüften PGH-Farben und Lasuren aus unserem Zubehör-Sortiment.

Der GartenHaus Montageservice auf einen Blick: Deine Vorteile

✓ Fachgerechter Aufbau durch unsere Montage-Profis

✓ Ein fester Ansprechpartner für dein Projekt

✓ Bestpreisgarantie und Qualität vom Marktführer

Montageservice der GartenHaus GmbH: So funktioniert‘s:
Nach deiner Bestellung vereinbaren wir mit dir einen Termin, besprechen deinen Auftrag und klären alle deine Fragen.

Wir schicken dir rechtzeitig die Kontaktdaten deines Montagepartners aus deiner Region. Wenn du fachliche Fragen oder Wünsche hast, kannst du dich direkt an einen kompetenten Ansprechpartner wenden. Du stimmst die letzten Fragen mit dem Montage-Team ab und vereinbarst dann einen Termin.

Bitte beachte, dass die Aufbauteams zum Einplanen deines Montagetermins ausreichend Vorlaufszeit benötigen. Damit der Aufbau zeitnah nach der Lieferung erfolgen kann, empfiehlt es sich, die Buchung des Montageservices mit der Produktbestellung vorzunehmen. Eine spätere Nachbestellung des Montageservices ist nach individueller Absprache und erfolgter Prüfung gegebenenfalls möglich. Auch die Montage von Dachrinne, Fußbodendämmung, optionalem Fußboden, sowie die Imprägnierung sind optional in unserem Zubehör am Produkt hinzubuchbar.

Bitte hab Verständnis, dass aus Sicherheitsgründen nur die über die GartenHaus GmbH bezogenen Originalteile verbaut werden.

Für die Vorbereitung der Baustelle und für die Bestellung von Montageleistungen gibt es wichtige Infos. Diese findest du im Dokument und Link

 

Hinweis zur Buchung des richtigen Montageservices: Grundsätzlich sind am Produkt immer die richtigen Montageservice Artikel hinterlegt. Wenn du eine Montage nachträglich buchst, achte bitte bei der Auswahl auf folgende Merkmale:

·         Walmdach: Mit 4 und mehr Dachflächen (siehe Beispielbilder). Alle anderen Dächer werden als „Standarddach“ betrachtet

·         Fußboden: Viele unserer Produkte werden bereits ab Werk mit einem Fußboden ausgeliefert. Für diese Produkte ist das entsprechende Montageprodukt inkl. Fußboden zu wählen. Wenn der Fußboden nicht im Lieferumfang ist, kannst du ihn einfach als separates Zubehör dazu buchen. Für diese Fußböden ist die Zusatzmontage für Fußböden zu wählen.

·         Mehrraum: Für Gebäude mit mindestens einem, durch eine Wand getrennten Raum oder Schlafboden

·         Quadratmeteranzahl: Bezieht sich auf die Grundfläche + Dachüberhang des zu montierenden Produktes

·         Bauart:

Block bezeichnet Häuser, bei denen die Bohlen ineinandergreifend ausgeführt sind (siehe folgendes Bild)

Schraubsystem bezieht sich auf Produkte, die in Elementen oder einzelnen Bohlen ausgeführt sind und im Rahmen verschraubt werden müssen. (siehe folgendes Bild)

€ 4.799,00

Imprägnierung bis 20m²

Mehr Details anzeigen

Imprägnierung bis 20m²

Wenn du dich dafür entscheidest, dein Produkt von einem unserer Montageteams imprägnieren zu lassen, handelt es sich um das fachgerechte (einmalige) Auftragen von Imprägnierungsmittel (nach Aufbau) an der Außenseite des Produktes.

Achtung: Das Material ist nicht im Lieferumfang. Bestelle bitte hierfür PGH Holzschutzgrund Imprägnierung aus dem Zubehör in vorgeschlagener Menge oder das passende Farbenset.

Die Imprägnierung schafft – in Verbindung mit einer Holzendbehandlung in Form von Deckfarbe oder Lasur – die Basis für langanhaltenden Schutz vor holzabbauenden Pilzen, Bläuebefall, holzzerstörende Insekten/Schimmel. Damit ist der Grundstein für langjährige Freude an Ihrem Wunschprodukt gelegt. Die Holzendbehandlung kann erst ca. 24 Stunden nach der Imprägnierung erfolgen und kann daher hier nicht mit angeboten werden.

Wir weisen an dieser Stelle darauf hin, dass eine Imprägnierung ab Werk – bei vielen Modellen direkt als Variante zu wählen – einen stärkeren Schutz bietet als die Imprägnierung nach dem Aufbau. Bei der Werksimprägnierung wird das Imprägnierungsmittel in der Fertigung maschinell aufgetragen. Hierbei werden insbesondere auch Nut und Feder effektiv geschützt.

Die Imprägnierung des Hauses, ob durch unser Montageteam oder ab Werk, stellt eine Erstbehandlung dar. Für einen optimalen Schutz deines Hauses ist nach einer Trocknungszeit ein Zweitanstrich mit einer geeigneten Lasur - bzw. Deckfarbe nötig. Wir empfehlen dir hierfür unsere qualitätsgeprüften PGH-Farben und Lasuren aus unserem Zubehör-Sortiment.

Der GartenHaus Montageservice auf einen Blick: Deine Vorteile

✓ Fachgerechter Aufbau durch unsere Montage-Profis

✓ Ein fester Ansprechpartner für dein Projekt

✓ Bestpreisgarantie und Qualität vom Marktführer

Montageservice der GartenHaus GmbH: So funktioniert‘s:
Nach deiner Bestellung vereinbaren wir mit dir einen Termin, besprechen deinen Auftrag und klären alle deine Fragen.

Wir schicken dir rechtzeitig die Kontaktdaten deines Montagepartners aus deiner Region. Wenn du fachliche Fragen oder Wünsche hast, kannst du dich direkt an einen kompetenten Ansprechpartner wenden. Du stimmst die letzten Fragen mit dem Montage-Team ab und vereinbarst dann einen Termin.

Bitte beachte, dass die Aufbauteams zum Einplanen deines Montagetermins ausreichend Vorlaufszeit benötigen. Damit der Aufbau zeitnah nach der Lieferung erfolgen kann, empfiehlt es sich, die Buchung des Montageservices mit der Produktbestellung vorzunehmen. Eine spätere Nachbestellung des Montageservices ist nach individueller Absprache und erfolgter Prüfung gegebenenfalls möglich.

Bitte hab Verständnis, dass aus Sicherheitsgründen nur die über die GartenHaus GmbH bezogenen Originalteile verbaut werden.

Für die Vorbereitung der Baustelle und für die Bestellung von Montageleistungen gibt es wichtige Infos. Diese findest du im Dokument und Link

 

€ 269,00

Montage Dachrinne - 1 Dachseite

Mehr Details anzeigen

Montage Dachrinne - 1 Dachseite

Du hast dich zum Schutz und für die Langlebigkeit deines Produkts für ein passendes Dachentwässerungssystem entschieden.

Dann buch die professionelle Montage vom Fachmann gleich mit hinzu.. (Bei diesem Artikel handelt es sich um eine Zusatzmontage, die nur in Verbindung mit einem Montageauftrag für eines unserer Hauptprodukte gebucht werden kann)

Was ist in diesem Montageprodukt enthalten:

-          Fachgerechte Platzierung, Ausrichtung und Montage unserer Dachrinnen- bzw. Fallrohrsets

-          Montage der zusätzlich erhältlichen Rinneneinhänge (nur bei Dachrinnensets notwendig - optionales Zubehör)

Wählen die für dein Produkt passende Variante. Bei Dachrinnensets ist die Anzahl der zu entwässernden Dachseiten (1, 2 oder 4) ausschlaggebend, bei den Fallrohrsets die Anzahl der empfohlenen und bestellten Sets.

Achtung: Die Dachrinne bzw. das Fallrohr ist nicht enthalten. Bestelle hierzu eine der empfohlenen Dachrinnen bzw. Fallrohre aus unserem Zubehör. Wir empfehlen für unsere Dachrinnensets zusätzlich die Rinneneinhänge zu bestellen. Ein Rinneneinhang ist der fachgerechte Abschluss an der Dachtraufe. Er ist das Übergangsblech von der Dachfläche zur Dachrinne und sein Einsatz sorgt für kontrollierten Wassereinlauf in die Dachrinne. Die Montage der Rinneneinhänge ist im Montagepreis der Dachrinne enthalten.

Der GartenHaus Montageservice auf einen Blick: Deine Vorteile

✓ Fachgerechter Aufbau durch unsere Montage-Profis

✓ Ein fester Ansprechpartner für dein Projekt

✓ Bestpreisgarantie und Qualität vom Marktführer

Montageservice der GartenHaus GmbH: So funktioniert‘s:
Nach deiner Bestellung vereinbaren wir mit dir einen Termin, besprechen deinen Auftrag und klären alle deine Fragen.

Wir schicken dir rechtzeitig die Kontaktdaten deines Montagepartners aus deiner Region. Wenn du fachliche Fragen oder Wünsche hast, kannst du dich direkt an einen kompetenten Ansprechpartner wenden. Du stimmst die letzten Fragen mit dem Montage-Team ab und vereinbarst dann einen Termin.

Bitte beachte, dass die Aufbauteams zum Einplanen deines Montagetermins ausreichend Vorlaufszeit benötigen. Damit der Aufbau zeitnah nach der Lieferung erfolgen kann, empfiehlt es sich, die Buchung des Montageservices mit der Produktbestellung vorzunehmen. Eine spätere Nachbestellung des Montageservices ist nach individueller Absprache und erfolgter Prüfung gegebenenfalls möglich.

Bitte hab Verständnis, dass aus Sicherheitsgründen nur die über die GartenHaus GmbH bezogenen Originalteile verbaut werden.

Für die Vorbereitung der Baustelle und für die Bestellung von Montageleistungen gibt es wichtige Infos. Diese findest du im Dokument und Link

€ 199,00

Montage Boden-Dämmung bis 20m²

Mehr Details anzeigen

Montage Boden-Dämmung bis 20m²

Eine fachgerechte Dämmung des Fußbodens ist eine wertvolle Investition und gerade zur kalten Jahreszeit ist eine gute Isolierung empfehlenswert. Freu Dich auf eine warme und gemütliche Residenz in Deinem Garten und buche diesen Artikel ganz einfach zur Hausmontage dazu.

Was ist in diesem Montageprodukt enthalten:

-          Individueller Zuschnitt des Dämmmaterials

-          Befestigung der Dämmplatten am Fundamentrahmen

-          Luftdichtes Abkleben der Platten auf dem Rahmen zur optimalen Isolierwirkung

Wähle die Grundfläche, die Du isolieren willst, passend zum Produkt aus (bis 10m², bis 15m², usw.). Entscheidend ist die Grundfläche des zu isolierenden Gebäudes.


Achtung: Das Material zur Bodendämmung ist nicht enthalten. Bestelle hierzu ein empfohlenes Dämmset aus unserem Zubehör. Bei mehrstöckigen Häusern wird nur der Boden vom Untergeschoss gedämmt.

Der GartenHaus Montageservice auf einen Blick: Deine Vorteile

✓ Fachgerechter Aufbau durch unsere Montage-Profis

✓ Ein fester Ansprechpartner für dein Projekt

✓ Bestpreisgarantie und Qualität vom Marktführer

Montageservice der GartenHaus GmbH: So funktioniert‘s:
Nach deiner Bestellung vereinbaren wir mit dir einen Termin, besprechen deinen Auftrag und klären alle deine Fragen.

Wir schicken dir rechtzeitig die Kontaktdaten deines Montagepartners aus deiner Region. Wenn du fachliche Fragen oder Wünsche hast, kannst du dich direkt an einen kompetenten Ansprechpartner wenden. Du stimmst die letzten Fragen mit dem Montage-Team ab und vereinbarst dann einen Termin.

Bitte beachte, dass die Aufbauteams zum Einplanen deines Montagetermins ausreichend Vorlaufszeit benötigen. Damit der Aufbau zeitnah nach der Lieferung erfolgen kann, empfiehlt es sich, die Buchung des Montageservices mit der Produktbestellung vorzunehmen. Eine spätere Nachbestellung des Montageservices ist nach individueller Absprache und erfolgter Prüfung gegebenenfalls möglich.

Bitte hab Verständnis, dass aus Sicherheitsgründen nur die über die GartenHaus GmbH bezogenen Originalteile verbaut werden.

Für die Vorbereitung der Baustelle und für die Bestellung von Montageleistungen gibt es wichtige Infos. Diese findest du im Dokument und Link

€ 299,00

Baupläne & Dokumente
Bewertungen

Durchschnittliche Bewertung von 0 von 5 Sternen

(0)

Durchschnittliche Bewertung von 0 von 5 Sternen

(0 Bewertungen)
Produktdetails
Details:
Wandstärke mm
44
Dachform
Flachdach
Fußboden
inklusive
Grundfläche m²
19.18
Raumanzahl
1

Beliebte Produkte