Zum Hauptinhalt springen Zur Suche springen Zur Hauptnavigation springen
Nutze die finale Chance, dir die Black Friday Preise zu sichern!
Beratung
Sales Contact Image
Verkaufsberatung: 040 76 122 122
Rückrufservice
Tage
Extra gratis Zubehör - automatisch im Warenkorb bei vielen Artikeln (verlängert)

1.799,00 €

-42%
UVP 3.099,00 €
-42%

inkl. MwSt. | Versandkostenfrei

Black Friday Deal

Bester Preis des Jahres | Nur für kurze Zeit

Durchschnittliche Bewertung von 4.5 von 5 Sternen

(3)

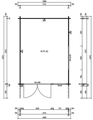
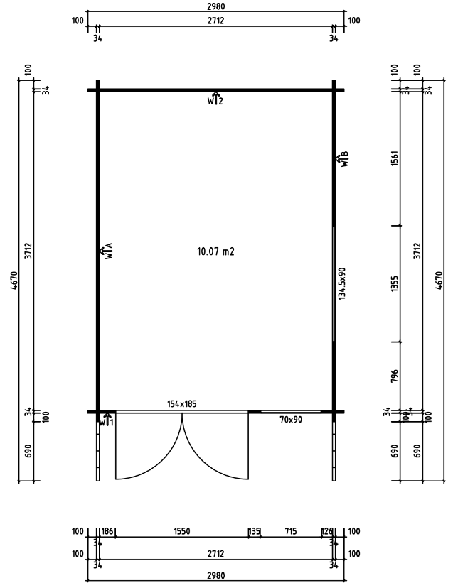
Gartenhaus Gabriel-34 300 x 400 cm

Die unten ausgewählten Zubehörartikel werden mit in den Warenkorb gelegt.
Purchase Advice Image
Persönliche Produkt- & Kaufberatung gewünscht Tel: 040 76 122 122
Fragen zum Produkt und extra Deal sichern?
WhatsApp-Beratung und Extra-Deal sichern!
Whatsapp Beratung
Lieferzeit ca. 2-3 Wochen
Versandkostenfrei
Skonto Icon
-3% Skonto bei Vorkasse
Produktvarianten
Schutz-Imprägnierung wählen:
Ohne Schutz-Imprägnierung
Lieferung zum Wunschzeitraum
Passendes Zubehör zu diesem Produkt
Produktbeschreibung

Das Gartenhaus Gabriel gehört zu den Topsellern unserer beliebtesten Gartenhäuser. Das Haus vereint dabei viele tolle Eigenschaften wie einen hellen Innenraum und ist vielseitig nutzbar. 

 alle Blockbohlen mit 4-fach Eckausfräsung

✓ hochwertige Doppeltür mit Leimholzrahmen

✓ inkl. Fußboden

 

Artikeldetails zum Gartenhaus Gabriel-34:

  • Außenmaß mit Dachüberstand: 338 x 467 cm
  • Sockelmaß: 375 x 275 cm
  • Grundfläche: 10,5 m²
  • Seitenwandhöhe: ca. 203 cm
  • Gesamthöhe: ca. 250 cm
  • Rauminhalt: ca. 23,8 m³
  • Dachneigung: 19°
  • Leimholz-Doppeltür: ca. 154 x 185 cm
  • Doppelfenster: 135 x 90 cm
  • Einzelfenster: 70 x 90 cm
  • Wandstärke: 34 mm

Im Lieferumfang des Gartenhauses Gabriel-34 enthalten:

  • Dach aus 12 mm Multifunktionsplatten
  • Fußboden aus 12 mm Multifunktionsplatten
  • alle Blockbohlen mit 4-fach Eckausfräsung (wind- u. regendicht)
  • Verglasung der Tür und Fenster aus Echtglas
  • hochwertige Doppeltür mit Leimholzrahmen
  • Schloss, Drückergarnitur, Montagematerial & Aufbauzeichnung
  • Lieferung ohne Dachpappe
  • Lieferung in natur ohne Farbbehandlung
Zubehör & Services
3 Zubehörartikel sind gerade ausgewählt (inkl. unseren Empfehlungen). Die passenden Mengen sind voreingestellt.

Das benötigst du für den Aufbau

Sparset Montagezubehör und Befestigung S

Mehr Details anzeigen

Sparset Montagezubehör und Befestigung S

Feuchtigkeitssperre, Sturmwinkel, Windverankerung                   

Basic Zubehör Set mit bis zu 20% Ersparnis gegenüber dem Einzelkauf!

Das Minimal Set für den sicheren Aufbau und Verankerung des Gartenhauses.

Wir empfehlen dieses Set dringend für jedes Gartenhaus. Damit ist dein Gartenhaus vor Feuchtigkeit und Sturm geschützt. Mit dem auf dein Haus abgestimmten Basis-Set hast du garantiert viele Jahre Freude an deinem Gartenhaus!

Dieses Set ist für Gartenhäuser mit einer Grundfläche von 0 - 20 m² berechnet. Mit diesem Set hast du mit einem Klick alles, was du für den sicheren Aufbau und Verankerung deines Gartenhauses benötigen – und das in ausreichender Menge.

Bestehend aus:

  • Feuchtigkeitssperre (Set: ca. 100 Stk.)
  • Sturmwinkel (Set: 4 Stück)                                             
  • 1x Windverankerungs-Set (Set für 2 Seiten)

Beschreibung Feuchtigkkeitssperre:

Unterlage Pads aus Spezial-Gummigranulat für Lager- und Fundamenthölzer 

Gummigranulat Pads werden beim Aufbau der Unterkonstruktion eines Gartenhauses als Feuchtigkeitssperre und zum Ausgleich von Unebenheiten benutzt. Sie werden unterhalb der Unterkonstruktion angebracht bzw. auf der Fundamentplatte verlegt. Die Pads sollten bestenfalls alle 30-40 cm verlegt werden. Da die Pads aus einem spezial Gummigranulat hergestellt werden, können sie weder Wasser aufsaugen, noch gammeln. Das Gummi schützt die Unterkonstruktion des Gartenhauses gegen aufsteigende Nässe und vermeidet somit die Verwitterung und Fäule der Unterkonstruktion. Gleichzeitig ist durch den erhöhten Aufbau eine Drainage gewährleitet und das Wasser kann problemlos abfließen und eine perfekte Luftzirkulation ist unter den Fundamenthölzern gewährleistet.

Vorteile unserer Spezial Gummigranulat Pads

  • Keine scharfen Kanten
  • Schutz gegen aufsteigende Nässe
  • Dampfdiffusionsfähig
  • Trittschalldämmend
  • Gleicht Unebenheiten in der Bodenplatte aus
  • Rutschfest
  • Unverrottbar da aus 100% Gummi hergestellt
  • Formbeständig
  • Keine Staunässe unter den Hölzern
  • Dient als Drainage, Wasser kann in alle Richtungen abfließen

Abmessungen der Pads: 

60 x 60 x 6 mm  (Länge x Breite x Stärke)

Inhalt pro Verpackung

Eine Verpackungseinheit besteht aus ca. 100 Stück Spezial Gummigranulat Pads

Tipps und Tricks zur fachgerechten Verlegung der Gummigranulat Pads sind in diesem Infovideo zu finden :

 

Beschreibung Sturmwinkel:

Spezial Sturmwinkel-Set ( 4 Stück) zur Befestigung des Gartenhauses am Fundament

Wir empfehlen dein Gartenhaus in besonders windanfälligen Gebieten mit unseren Spezial Sturm-Winkeln an der Fundament- bzw. Bodenplatte zu befestigen. Die Winkel können wahlweise Innen oder Außen in mindestens allen vier Ecken Ihren Gartenhauses an der Bodenplatte befestigt werden. Der Spezial Winkel hat einen extra langen Schenkel und verbindet somit die Fundament- bzw. Bodenplatte mit dem Fundamentholz und den ersten beiden Blockbohlenreihen. Bei größeren Garten bzw. Blockbohlenhäusern sollte zusätzlich zu den vier Ecken noch mittig ein Winkel in jeder Wand gesetzt werden. Wir liefern die Sturmwinkel ohne Befestigungsmaterial (Schrauben & Dübel). 

Verpackungseinheit pro Set: 

Ein Set besteht aus 4 Spezial Sturmwinkeln (ohne Befestigungsmaterial)

Maße: ca. 28,5 x 9 x 6,5 cm; Materialstärke: ca. 0,5 cm

Für eine 100% Sturmsicherung empfehlen wir eine Kombination aus diesem 
Set und dem Windverankerungs-Set für die einzelnen Blockbohlen !!

Tipps und Tricks zur fachgerechten Verlegung der Sturmwinkel bzw. des Windverankerungs-Sets sind in diesem Infovideo zu finden :

 

Beschreibung Windverankerungs-Set für Blockbohlenhäuser:

Wir empfehlen in besonders starken Windregionen dein Gartenhaus durch ein zusätzliches Windverankerungs-Set zu sichern. Das Set besteht aus zwei stabilen Gewindestangen, welche mit Hilfe von speziellen Metallwinkeln und Spannungsfedern in zwei gegenüberliegenden Ecken von außen oder innen in Ihrem Gartenhaus montiert werden. Die Gewindestangen verbinden die unterste und oberste Blockbohle und verhindern ein Auseinandergehen der einzelen Blockbohlen und halten diese bei Sturm zusammen. Da man die einzelnen Blockbohlen nicht unter-
einander verschrauben sollte, ist die Sicherung mit diesem Set die beste Möglichkeit die Bohlen untereinander zu verbinden. 

Im Set enhalten sind: 

4x Gewindestangen M6 x 1000mm inkl. Montagewinkel, Spannungsfedern und Montagematerial mit Schrauben

Das Montagematerial (Schrauben) ist für Blockbohlenhäuser von einer Wandstärke vom 19-45 mm
geeignet. Wenn du das Set bei starken Blockbohlen (über 45 mm) verwendest, müssen die 
Schrauben bauseits gegen längere Schrauben ausgetauscht werden !!

Für eine 100% Sturmsicherung empfehlen wir eine Kombination aus diesem Set und dem
Sturmwinkel Set für eine Befestigung auf der Fundamentplatte. 

€ 119,00

Sparset Schindel Dacheindeckung - 18 m²

Mehr Details anzeigen

Sparset Schindel Dacheindeckung - 18 m²

Dein Rundum-sorglos-Paket fürs regensichere Dach – das Schindel-Komplettset spart dir bis zu 20 % gegenüber dem Einzelkauf!

 

Lieferumfang für Dachflächen bis 18 m²:

· Premium Rechteckschindeln schwarz (7 Pakete je 3 m²)

· Unterdeckbahn Ondutiss Strong Air 120 (3 Rollen)

· Dachpappstifte (7 Päckchen)

· Bitumenkleber (2 Tuben)

 

Premium Rechteckschindeln schwarz:

Unsere Premium Rechteck-Bitumen-Dachschindeln überzeugen durch eine hochwertige Trägereinlage aus robustem Glasvlies und ein edles, farbintensives Mineralgranulat auf der Oberseite. Diese Kombination sorgt nicht nur für ein elegantes Erscheinungsbild, sondern auch für maximalen Schutz: Die Schindeln verhindern zuverlässig das Eindringen von Wasser, bieten eine windfeste und UV-beständige Oberfläche und verleihen deinem Dach eine edle, pflegeleichte Optik – langanhaltend schön und zuverlässig wetterbeständig.

 

Unterdeckbahn Ondutiss Strong Air 120:

Die hochwertige, dreilagige Unterspann- und Schalungsbahn aus Polypropylen bietet zuverlässigen Schutz vor Wind und Feuchtigkeit und unterstützt eine effiziente Wärmedämmung.

· Abmessung: 10 x 1 m

 

Dachpappstifte:

Die Dachpappstifte dienen zur robusten und wetterfesten Befestigung der Schindeln und Unterdeckbahn. Ihre verzinkte Oberfläche sorgt für einen zuverlässigen Schutz vor Korrosion.

· Abmessung: 2,5 x L 15 mm

· Ø Kopf: 8 mm

· Verzinkt

· Menge: ca. 200 g = ca. 133 Stück

 

Bitumenkleber:

Mit diesem hochwertigen Bitumenkleber kannst du windgefährdete Schindeln zusätzlich zu den Dachpappstiften fixieren und damit für die ideale Haltbarkeit deines Daches sorgen – perfekt auch für schnelle, zuverlässige Reparaturen geeignet. Der Kleber ist sofort gebrauchsfertig – kein Verdünnen, kein Erhitzen, einfach auftragen und befestigen.
Für optimale Haftung: Stelle sicher, dass die Fläche sauber, trocken und frei von Sand, Blättern oder anderen Verschmutzungen ist. Der Untergrund sollte nicht vereist oder mit Reif bedeckt sein.

· Farbe: schwarz

· Inhalt: 310 ml

· Zur Anwendung auf Holz und Bitumen

 

Das Zubehörpaket ist optimal auf die üblichen Bedarfsmengen abgestimmt Je nach Art der Befestigung und Überlappung kann der Materialverbrauch leicht variieren.

€ 379,00

Firstabdeckung Satteldach

Mehr Details anzeigen

Firstabdeckung Satteldach

Zur perfekten Abdichtung des Firststoßes der Dacheindeckung

  • Aluminium
  • anthrazit - grau pulverbeschichtet
  • Schenkellänge: 12,5 cm
  • Länge: 2 m
  • Stärk: 0,8 mm
  • Bitte ändere die Anzahl der Firstabdeckung auf die benötigte Menge.

Schrauben sind nicht im Lieferumfang. Wir empfehlen 8 Schrauben je Profil.

€ 49,00

Giebelblech

Mehr Details anzeigen

Giebelblech

 

Giebelblech zur Abdeckung der Giebelbretter.

  • Farbe: Anthrazit
  • Material: Aluminium pulverbeschichtet
  • Stärke: 0,8 mm
  • Maße:
  • Tiefe: 120 mm
  • Höhe: 50 mm
  • Höhe Tropfkante: 15 mm
  • Länge; 2 m

Schrauben sind nicht im Lieferumfang. Passende Spenglerschrauben sind hier.

€ 49,00

Dachrinnenset RG 100 anthrazit metallic - für 2 Dachseiten bis je 5 m

Mehr Details anzeigen

Dachrinnenset RG 100 anthrazit metallic - für 2 Dachseiten bis je 5 m

Für Gartenhäuser aus Holz mit Seitenlängen bis 5 m, komplettes Set für 2 Holzhausseiten

Dachrinnenset für Gartenhäuser mit Stirnbrett - bei Gartenhäusern ohne Stirnbrett muss dieses bauseits für die Montage gestellt werden

Marley Dachrinnen-Sets schützen Wände und Fundamente von Garten- und Blockhäusern sicher und zuverlässig vor Schäden durch Regenwasser.

Vorteile:

  • Komplettes Set mit Rinnen, Fallrohren und Befestigungszubehör
  • Leicht zu montieren
  • Alles komplett im Set
  • witterungs-, UV- und temperaturbeständig
  • Schlagfester, hochwertiger Kunststoff
  • Top Qualität - Made in Germany
  • 10 Jahre Garantie

Set-Inhalt:

  • 4x Dachrinne, halbrund 2 m RG 100
  • 2x Dachrinne, halbrund 1 m RG 100
  • 4x Rinnenverbindungsschale RG 100
  • 4x Endstück für links und rechts RG 100
  • 18x Rinnenhalter RG 100
  • 18x Verstellwinkel für Rinnenhalter
  • 2x Stutzen RG 100 / DN 75
  • 4x Rohrbogen DN 75, 45°
  • 2x Fallrohr DN 75 2 m
  • 4x Rohrschelle mit Ringschraube

€ 359,00

Rinneneinhang

Mehr Details anzeigen

Rinneneinhang

Ein Rinneneinhang ist der fachgerechte Abschluss an der Dachtraufe. Er ist das Übergangsblech von der Dachfläche zur Dachrinne. Der Einsatz sorgt für kontrollierten Wassereinlauf in die Dachrinne.

Material: Stahl verzinkt, pulverbeschichtet

Maße: A:60mm B:125mm D:15mm

Länge:200cm Stärke:0,50mm

Schrauben sind nicht im Lieferumfang. Passende Spenglerschrauben sind hier.

€ 49,00

Montage und Services

Mehr Details anzeigen

Montage GartenHaus Block Ein-Raum bis 20m² m. Fußb.

GartenHaus Montageservice: Fachgerechte Montage vom Profi zum Bestpreis!

Wähle bequem aus unseren Montage-Sets das für dich passende Gesamtpaket.

Option 1  –  Basic Montage – Haus:

In diesem Set sind enthalten:

·         Der Aufbau des Produktes mit dem kompletten Aufbau ab Oberkante Fundament, inklusive allen im Bausatz enthaltenen Zubehörteilen. Tragewege zum Aufbauort bis 15 m sind im Preis inklusive.

·         Wenn du dich für das Sparset "Montagezubehör und Befestigung" entscheidest, ist auch die Montage dieses Sets inklusive. Wir empfehlen dieses dringend zum sicheren Aufbau. Es schützt dein Produkt effektiv gegen Feuchtigkeit und starken Wind.

Wenn du weiteres Zubehör montieren willst, kannst du das als Zusatzmontage dazu buchen. Die findest du direkt bei deinem Wunschprodukt..

Option 2  – Premium Montage  – Haus und Dacheindeckung:

In diesem Set sind enthalten:

·         Alle Leistungen aus Montage Option 1

·         Zusätzlich enthalten ist das fachgerechte Verlegen von Dachpappe und Dachschindeln, KSK oder EPDM-Folie. Das Material ist nicht im Lieferumfang. Bestelle hierfür eines der vorgeschlagenen Dacheindeckungs-Sets bzw. das Wunschmaterial in der vorgegebenen Menge. Bitte achte auf die richtige Anzahl/Größe der Dachbahn/Folie und Dachabschluss-Profile bzw. -Blenden. Wir beraten dich gern zu den Möglichkeiten!

·         Ein persönlicher Ansprechpartner begleitet dein Projekt von Beauftragung bis zum Abschluss der Montage.

Wenn du weiteres Zubehör montieren willst, kannst du das als Zusatzmontage dazu buchen. Die findest du direkt bei deinem Wunschprodukt..

Option 3 – Exklusiv Montage – Haus und Dacheindeckung + alle optionalen Zusatzmontagen und Sonderwünsche

Wenn du das volle Programm ohne „Wenn“ und „Aber“ willst, ist diese Option genau das Richtige für dich.

In diesem Set sind enthalten:

·         Alle Leistungen der Montage Optionen 1+2

·         Die Zusatzmontage des passenden Dachrinnensets

·         Die Zusatzmontage des Fußbodens (wenn der Fußboden im Lieferumfang des Bausatzes enthalten ist, ist die Montage bereits in der Basic-Option inbegriffen)

·         Verlegung der Bodendämmung

·         Imprägnierung während des Aufbaus (nur notwendig, wenn das Produkt nicht bereits ab Werk mit einer Imprägnierung versehen wurde)

·         Längere Tragewege zum Aufbauort bis 40 m sind im Preis inklusive

·         Wir gehen auf deine individuellen Sonderwünsche ein und finden passende Lösungen

Bitte beachte, dass das zu verbauende Zubehör als optionales Zubehör bestellt werden muss. Wir bieten unseren Montageservice nur für Original-GartenHaus Zubehör an.

Weitere Hinweise:

Imprägnierung: Fachgerechtes (einmaliges) Auftragen von Imprägnierungsmittel (nach Aufbau) an der Außenseite des Produktes. Das Material ist nicht im Lieferumfang. Bestelle bitte hierfür PGH Holzschutzgrund Imprägnierung aus dem Zubehör in vorgeschlagener Menge oder das passende Farbenset.

Die Imprägnierung schafft – in Verbindung mit einer Holzendbehandlung in Form von Deckfarbe oder Lasur – die Basis für langanhaltenden Schutz vor holzabbauenden Pilzen, Bläuebefall, holzzerstörende Insekten/Schimmel. Damit ist der Grundstein für langjährige Freude an deinem Wunschprodukt gelegt! (Die Holzendbehandlung kann erst ca. 24 Stunden nach der Imprägnierung erfolgen und kann daher hier nicht mit angeboten werden.)

Wir weisen an dieser Stelle darauf hin, dass eine Imprägnierung ab Werk – bei vielen Modellen direkt als Variante zu wählen – einen stärkeren Schutz bietet als die Imprägnierung nach dem Aufbau. Bei der Werksimprägnierung wird das Imprägnierungsmittel in der Fertigung maschinell aufgetragen. Hierbei werden insbesondere auch Nut und Feder effektiv geschützt.

Die Imprägnierung des Hauses, ob durch unser Montageteam oder ab Werk, stellt eine Erstbehandlung dar. Für einen optimalen Schutz deines Hauses ist nach einer Trocknungszeit ein Zweitanstrich mit einer geeigneten Lasur - bzw. Deckfarbe nötig. Wir empfehlen dir hierfür unsere qualitätsgeprüften PGH-Farben und Lasuren aus unserem Zubehör-Sortiment.

Der GartenHaus Montageservice auf einen Blick: Deine Vorteile

✓ Fachgerechter Aufbau durch unsere Montage-Profis

✓ Ein fester Ansprechpartner für dein Projekt

✓ Bestpreisgarantie und Qualität vom Marktführer

Montageservice der GartenHaus GmbH: So funktioniert‘s:
Nach deiner Bestellung vereinbaren wir mit dir einen Termin, besprechen deinen Auftrag und klären alle deine Fragen.

Wir schicken dir rechtzeitig die Kontaktdaten deines Montagepartners aus deiner Region. Wenn du fachliche Fragen oder Wünsche hast, kannst du dich direkt an einen kompetenten Ansprechpartner wenden. Du stimmst die letzten Fragen mit dem Montage-Team ab und vereinbarst dann einen Termin.

Bitte beachte, dass die Aufbauteams zum Einplanen deines Montagetermins ausreichend Vorlaufszeit benötigen. Damit der Aufbau zeitnah nach der Lieferung erfolgen kann, empfiehlt es sich, die Buchung des Montageservices mit der Produktbestellung vorzunehmen. Eine spätere Nachbestellung des Montageservices ist nach individueller Absprache und erfolgter Prüfung gegebenenfalls möglich. Auch die Montage von Dachrinne, Fußbodendämmung, optionalem Fußboden, sowie die Imprägnierung sind optional in unserem Zubehör am Produkt hinzubuchbar.

Bitte hab Verständnis, dass aus Sicherheitsgründen nur die über die GartenHaus GmbH bezogenen Originalteile verbaut werden.

Für die Vorbereitung der Baustelle und für die Bestellung von Montageleistungen gibt es wichtige Infos. Diese findest du im Dokument und Link

 

Hinweis zur Buchung des richtigen Montageservices: Grundsätzlich sind am Produkt immer die richtigen Montageservice Artikel hinterlegt. Wenn du eine Montage nachträglich buchst, achte bitte bei der Auswahl auf folgende Merkmale:

·         Walmdach: Mit 4 und mehr Dachflächen (siehe Beispielbilder). Alle anderen Dächer werden als „Standarddach“ betrachtet

·         Fußboden: Viele unserer Produkte werden bereits ab Werk mit einem Fußboden ausgeliefert. Für diese Produkte ist das entsprechende Montageprodukt inkl. Fußboden zu wählen. Wenn der Fußboden nicht im Lieferumfang ist, kannst du ihn einfach als separates Zubehör dazu buchen. Für diese Fußböden ist die Zusatzmontage für Fußböden zu wählen.

·         Mehrraum: Für Gebäude mit mindestens einem, durch eine Wand getrennten Raum oder Schlafboden

·         Quadratmeteranzahl: Bezieht sich auf die Grundfläche + Dachüberhang des zu montierenden Produktes

·         Bauart:

Block bezeichnet Häuser, bei denen die Bohlen ineinandergreifend ausgeführt sind (siehe folgendes Bild)

Schraubsystem bezieht sich auf Produkte, die in Elementen oder einzelnen Bohlen ausgeführt sind und im Rahmen verschraubt werden müssen. (siehe folgendes Bild)

€ 0,00

Montage Dachrinne - 2 Dachseiten

Mehr Details anzeigen

Montage Dachrinne - 2 Dachseiten

Du hast dich zum Schutz und für die Langlebigkeit deines Produkts für ein passendes Dachentwässerungssystem entschieden.

Dann buch die professionelle Montage vom Fachmann gleich mit hinzu.. (Bei diesem Artikel handelt es sich um eine Zusatzmontage, die nur in Verbindung mit einem Montageauftrag für eines unserer Hauptprodukte gebucht werden kann)

Was ist in diesem Montageprodukt enthalten:

-          Fachgerechte Platzierung, Ausrichtung und Montage unserer Dachrinnen- bzw. Fallrohrsets

-          Montage der zusätzlich erhältlichen Rinneneinhänge (nur bei Dachrinnensets notwendig - optionales Zubehör)

Wählen die für dein Produkt passende Variante. Bei Dachrinnensets ist die Anzahl der zu entwässernden Dachseiten (1, 2 oder 4) ausschlaggebend, bei den Fallrohrsets die Anzahl der empfohlenen und bestellten Sets.

Achtung: Die Dachrinne bzw. das Fallrohr ist nicht enthalten. Bestelle hierzu eine der empfohlenen Dachrinnen bzw. Fallrohre aus unserem Zubehör. Wir empfehlen für unsere Dachrinnensets zusätzlich die Rinneneinhänge zu bestellen. Ein Rinneneinhang ist der fachgerechte Abschluss an der Dachtraufe. Er ist das Übergangsblech von der Dachfläche zur Dachrinne und sein Einsatz sorgt für kontrollierten Wassereinlauf in die Dachrinne. Die Montage der Rinneneinhänge ist im Montagepreis der Dachrinne enthalten.

Der GartenHaus Montageservice auf einen Blick: Deine Vorteile

✓ Fachgerechter Aufbau durch unsere Montage-Profis

✓ Ein fester Ansprechpartner für dein Projekt

✓ Bestpreisgarantie und Qualität vom Marktführer

Montageservice der GartenHaus GmbH: So funktioniert‘s:
Nach deiner Bestellung vereinbaren wir mit dir einen Termin, besprechen deinen Auftrag und klären alle deine Fragen.

Wir schicken dir rechtzeitig die Kontaktdaten deines Montagepartners aus deiner Region. Wenn du fachliche Fragen oder Wünsche hast, kannst du dich direkt an einen kompetenten Ansprechpartner wenden. Du stimmst die letzten Fragen mit dem Montage-Team ab und vereinbarst dann einen Termin.

Bitte beachte, dass die Aufbauteams zum Einplanen deines Montagetermins ausreichend Vorlaufszeit benötigen. Damit der Aufbau zeitnah nach der Lieferung erfolgen kann, empfiehlt es sich, die Buchung des Montageservices mit der Produktbestellung vorzunehmen. Eine spätere Nachbestellung des Montageservices ist nach individueller Absprache und erfolgter Prüfung gegebenenfalls möglich.

Bitte hab Verständnis, dass aus Sicherheitsgründen nur die über die GartenHaus GmbH bezogenen Originalteile verbaut werden.

Für die Vorbereitung der Baustelle und für die Bestellung von Montageleistungen gibt es wichtige Infos. Diese findest du im Dokument und Lin

€ 299,00

Montage Boden-Dämmung bis 15m²

Mehr Details anzeigen

Montage Boden-Dämmung bis 15m²

Eine fachgerechte Dämmung des Fußbodens ist eine wertvolle Investition und gerade zur kalten Jahreszeit ist eine gute Isolierung empfehlenswert. Freu Dich auf eine warme und gemütliche Residenz in Deinem Garten und buche diesen Artikel ganz einfach zur Hausmontage dazu.

Was ist in diesem Montageprodukt enthalten:

-          Individueller Zuschnitt des Dämmmaterials

-          Befestigung der Dämmplatten am Fundamentrahmen

-          Luftdichtes Abkleben der Platten auf dem Rahmen zur optimalen Isolierwirkung

Wähle die Grundfläche, die Du isolieren willst, passend zum Produkt aus (bis 10m², bis 15m², usw.). Entscheidend ist die Grundfläche des zu isolierenden Gebäudes.


Achtung: Das Material zur Bodendämmung ist nicht enthalten. Bestelle hierzu ein empfohlenes Dämmset aus unserem Zubehör. Bei mehrstöckigen Häusern wird nur der Boden vom Untergeschoss gedämmt.

Der GartenHaus Montageservice auf einen Blick: Deine Vorteile

✓ Fachgerechter Aufbau durch unsere Montage-Profis

✓ Ein fester Ansprechpartner für dein Projekt

✓ Bestpreisgarantie und Qualität vom Marktführer

Montageservice der GartenHaus GmbH: So funktioniert‘s:
Nach deiner Bestellung vereinbaren wir mit dir einen Termin, besprechen deinen Auftrag und klären alle deine Fragen.

Wir schicken dir rechtzeitig die Kontaktdaten deines Montagepartners aus deiner Region. Wenn du fachliche Fragen oder Wünsche hast, kannst du dich direkt an einen kompetenten Ansprechpartner wenden. Du stimmst die letzten Fragen mit dem Montage-Team ab und vereinbarst dann einen Termin.

Bitte beachte, dass die Aufbauteams zum Einplanen deines Montagetermins ausreichend Vorlaufszeit benötigen. Damit der Aufbau zeitnah nach der Lieferung erfolgen kann, empfiehlt es sich, die Buchung des Montageservices mit der Produktbestellung vorzunehmen. Eine spätere Nachbestellung des Montageservices ist nach individueller Absprache und erfolgter Prüfung gegebenenfalls möglich.

Bitte hab Verständnis, dass aus Sicherheitsgründen nur die über die GartenHaus GmbH bezogenen Originalteile verbaut werden.

Für die Vorbereitung der Baustelle und für die Bestellung von Montageleistungen gibt es wichtige Infos. Diese findest du im Dokument und Link

€ 219,00

Komfort Garantie

Mehr Details anzeigen

Komfort Garantie

Welche Produkte sind durch die Gartenhaus.com Garantie abgedeckt?

Unsere Komfort Garantie gilt ausschließlich für privat genutzte Produkte. Dazu zählen: 

  • Garten- & Gerätehäuser – dein Rückzugsort oder einfache Lösung zur Aufbewahrung
  • Saunen – für wohltuende Entspannung und Wellness im eigenen Zuhause
  • Kinderspielgeräte – Spiel und Spaß für Groß und Klein
  • Holzpavillons - für dein persönliches Paradies im Garten
  • Carports – zuverlässiger Schutz für dein Fahrzeug vor Regen, Schnee und Sonne
  • Garagen – sicherer Stellplatz mit zusätzlichem Stauraum für deine Bedürfnisse

Mit unserer Garantie kannst du dich auf die Qualität deines Produkts verlassen. Sollte doch einmal etwas nicht passen, sind wir schnell und unkompliziert für dich da.

Was beinhaltet die Komfort Garantie?

Dank unserer Komfort Garantie musst du dir keine Sorgen machen. Geht etwas kaputt, bekommst du von uns die passenden Ersatzteile für folgende Bereiche: 

  • Türen (Glasschäden bis zu 200 €)
  • Fenster (Glasschäden bis zu 200 €)
  • Dachrinne – für einen sicheren Wasserablauf
  • Türschloss – für zuverlässigen Schutz
  • Beschläge – falls kleine, aber wichtige Teile ersetzt werden müssen
  • Dacheindeckung (Dachpappe, Dachschindeln, KSK) – für optimalen Schutz vor Wind und Wetter

Wichtig:

Die Komfort-Garantie umfasst ausschließlich die Lieferung der Ersatzteile. Der Einbau liegt in deiner Hand. Für eine professionelle Montage wähle die Premium-Garantie. 

Mit der Komfort Garantie bist du gut abgesichert und kannst dein Gartenhaus.com-Produkt unbesorgt genießen.

Garantiebedingungen

Alle Details und mehr Infos zur Komfort Garantie

Noch Fragen? Unser Kundenservice ist jederzeit für dich da!

€ 69,00

Premium Garantie

Mehr Details anzeigen

Premium Garantie

Für welche Produkte gilt die Gartenhaus.com Garantie?

Unsere Premium Garantie gilt ausschließlich für Produkte, die du privat nutzt. Dazu gehören:

  • Garten- & Gerätehäuser – dein Rückzugsort oder einfache Lösung zur Aufbewahrung
  • Saunen – für wohltuende Entspannung und Wellness im eigenen Zuhause
  • Kinderspielgeräte – Spiel und Spaß für Groß und Klein
  • Holzpavillons - für dein persönliches Paradies im Garten
  • Carports – zuverlässiger Schutz für dein Fahrzeug vor Regen, Schnee und Sonne
  • Garagen – sicherer Stellplatz mit zusätzlichem Stauraum für deine Bedürfnisse

Mit unserer Garantie kannst du sicher sein, dass dein Produkt hochwertig verarbeitet ist und wir dir im Fall der Fälle schnell und unkompliziert weiterhelfen.

Was beinhaltet die Premium Garantie?

Unsere Premium Garantie sorgt dafür, dass du dich entspannt zurücklehnen kannst. Falls ein Problem auftritt, schicken wir dir Ersatzteile für folgende Komponenten:

  • Türen (Glasschäden bis zu 200 €)
  • Fenster (Glasschäden bis zu 200 €)
  • Dachrinne – für einen sicheren Wasserablauf
  • Türschloss – für zuverlässigen Schutz
  • Beschläge – falls kleine, aber wichtige Teile ersetzt werden müssen
  • Dacheindeckung (Dachpappe, Dachschindeln, KSK) – für optimalen Schutz vor Wind und Wetter

Extra-Service in der Premium Garantie:

Inklusive Handwerksservice & Ersatzteileinbau: Du bekommst nicht nur die Ersatzteile, sondern auch den professionellen Einbau dazu!

Mit unserer Premium Garantie bist du rundum abgesichert – für langanhaltende Freude an deinem Produkt.

Garantiebedingungen

Alle Details und mehr Infos zur Premium Garantie

Noch Fragen? Unser Kundenservice ist jederzeit für dich da!

 

€ 579,00

Zubehör für dein Produkt

Fußbodendämmungspaket für Garten- und Saunahäuser von 9-12 m²

Mehr Details anzeigen

Fußbodendämmungspaket für Garten- und Saunahäuser von 9-12 m²

Das Fußboden-Dämmungsset besteht aus hochwertigen Hartschaum Platten (1265 x 615 x 30 mm), einer Dampfbremsfolie, einem hochwertigen Multifunktions-Tape sowie einem Haltewinkel und Schrauben.

Funktionsweise

Die Dämmplatten müssen ggf. zurechtgeschnitten und anschließend in die Hohlräume der Fundamentbalken des Gartenhauses oder der Gartensauna gelegt werden. Anschließend wird die Dampfsperre aufgebracht. Die Schnittflächen der Folie sollten mit dem Tape luftdicht verklebt werden. Durch diese Konstruktionsweise bekommst du einen optimal gedämmten Boden für dein Gartenhaus oder deine Gartensauna.

Für das Verlegen der Dämmplatten sind Fundamentbalken und Bodenbretter vorausgesetzt. Sind diese nicht im Lieferumfang, bestelle bitte ein Boden-Paket aus dem Zubehör in vorgeschlagender Menge.

€ 579,00

PGH Hartwachsöl 0,75 L

Mehr Details anzeigen

PGH Hartwachsöl 0,75 L

Hochwertiges Hartwachsöl für Innenbereich

Unser Hartwachsöl bietet eine hochwertige Lösung für die Grundierung und Behandlung verschiedener saugfähiger Untergründe im Innenbereich. Mit einer seidenmatten, strapazierfähigen Oberfläche, die natürliche Strukturen belebt und Tönungen vertieft, bietet es beste Ergebnisse für Holz-, Kork- und Steinböden sowie andere Oberflächen. Einfach in der Anwendung und getestet gemäß höchsten Standards, ist es die ideale Wahl für professionelle Ergebnisse.

Artikeldetails zum Hartwachsöl:

  • Anwendung: Grundierung und Behandlung saugfähiger Untergründe im Innenbereich.

  • Eigenschaften: Seidenmatte Oberfläche, vertieft die Tönung, wasserabweisend.
  • Geprüft auf Chemikalienbeständigkeit und Migration.
  • Inhaltsstoffe: Leinöl, Holzöl, Ricinöl, Naturharzester, weitere.
  • VOC-Gehalt: Max. 440 g/l (EU-Grenzwert: max. 500 g/l).
  • Verarbeitung: Vor Gebrauch aufschütteln, dünn auftragen, polieren.
  • Trocknungszeit: Ca. 6-12 Std., überstreichbar nach 16-24 Std.
  • Verbrauch: 30-50 g/m²; Ergiebigkeit ca. 20 m²/l.
  • Lagerung: Kühl, trocken, ungeöffnet min. 24 Monate haltbar.
  • Entsorgung: Gemäß örtlichen Vorschriften.
  • Hinweise: Farbangaben unverbindlich, Probeanstrich empfohlen.

 

 

€ 49,00

Baupläne & Dokumente
Gartenhaus Gabriel-34 300 x 400 cm Verfügbare Downloads: Sicherheitshinweise-Gartenhaus-Alpholz.pdf
Bewertungen

Durchschnittliche Bewertung von 4.5 von 5 Sternen

(3)

Durchschnittliche Bewertung von 4.5 von 5 Sternen

(3 Bewertungen)

Gut mit Einschränkungen

Ist ein schönes Haus, Aufbau bis zum Dach problemlos, bin zufrieden damit. 2 Verbesserungsvorschläge: -Die Anleitung ist bis und mit Wände sehr gut nachvollziehbar. Beim Dach und für die kleinen Montagearbeiten sind die Zeichnungen sehr klein und schlecht nachvollziehbar. Es hat auch ein paar kleine Teile, bei denen nicht klar ist, wohin sie gehören. -Dach und Boden: die mitgelieferten Presspanplatten sind dazu nicht geeignet, erscheinen auch nicht in der Anleitung. Ich musste eine separate, stabile Lösung suchen.

Durchschnittliche Bewertung von 3.5 von 5 Sternen

Es wurde alles zu unserer Zufriedheit erledigt

Schon vor dem Kauf wurde viele Fragen beantwortet. Dann vom Anfang des Kaufes bis zum Aufbau der Gartenhütte hatte es niemals ein Problem gegeben, alles lief sehr korrekt ab. Auch die Montage wurde zu unserer Zufriedenheit sehr positiv erledigt Vielen Dank nochmals für diese gute Betreuung

Durchschnittliche Bewertung von 5 von 5 Sternen

Sehr stabiles Haus für mein Gütle

Wir haben uns dieses Häusschen für unser Gütle in der nähe von Stuttgart gekauft. Das Haus ist echt stabil, wir haben unsere Gartengerätschaften mit einem Haken an der Wand aufgehängt. Hält perfekt. Die Bestellung + Lieferung lief hat einwandfrei funktioniert

Durchschnittliche Bewertung von 5 von 5 Sternen

Produktdetails
Details:
Wandstärke mm
34
Dachform
Satteldach
Seitenverkehrte Montage
Ja
Fußboden
inklusive
Grundfläche m²
10.5
Breite inkl. Dachüberhang cm
338
Tiefe inkl. Dachüberhang cm
467
Gesamthöhe cm
250
Raumanzahl
1

Beliebte Produkte