Zum Hauptinhalt springen Zur Suche springen Zur Hauptnavigation springen
Jetzt Black Friday Preise sichern – es wird nicht mehr günstiger!
Beratung
Sales Contact Image
Verkaufsberatung: 040 76 122 122
Rückrufservice
Tage
Extra gratis Zubehör - automatisch im Warenkorb bei vielen Artikeln (verlängert)

2.139,00 €

-25%
UVP 2.839,00 €
-25%

inkl. MwSt. | Versandkostenfrei

Black Friday Deal

Bester Preis des Jahres | Nur für kurze Zeit

Durchschnittliche Bewertung von 4.5 von 5 Sternen

(3)

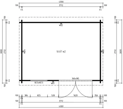
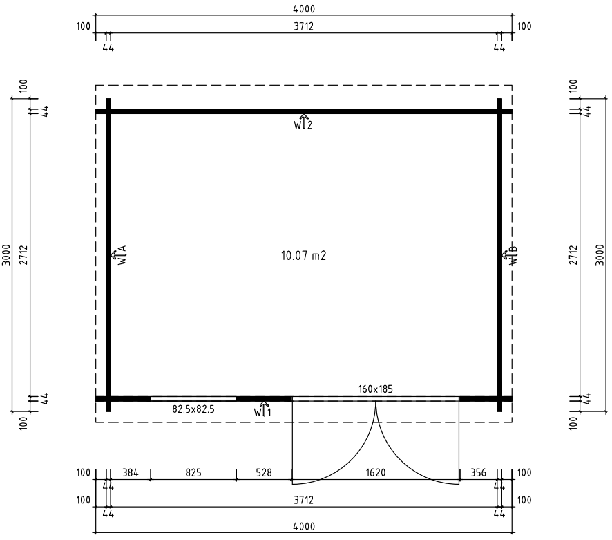
Gartenhaus Maria-Rondo 44 B

Die unten ausgewählten Zubehörartikel werden mit in den Warenkorb gelegt.
Purchase Advice Image
Persönliche Produkt- & Kaufberatung gewünscht Tel: 040 76 122 122
Fragen zum Produkt und extra Deal sichern?
WhatsApp-Beratung und Extra-Deal sichern!
Whatsapp Beratung
Lieferzeit ca. 2-3 Wochen
Versandkostenfrei
Skonto Icon
-3% Skonto bei Vorkasse
Produktvarianten
Tauch-Schutz-Imprägnierung wählen:
Ohne Schutz-Imprägnierung
Lieferung zum Wunschzeitraum
Passendes Zubehör zu diesem Produkt
Produktbeschreibung

Das Gartenhaus Maria-Rondo B der Marke Alpholz ist einer unserer Kundenlieblinge. Mit dessen Form eignet es sich sehr gut als Gerätehaus, doch bei der Nutzung sind Ihnen keine kreativen Grenzen gesetzt. Das Besondere am Haus sind das große Rundfenster, das den Innenraum mit Tageslicht erhellt, und das Pultdach, das dem Haus eine moderne Form verleiht. 

Artikeldetails zum Gartenhaus Maria-Rondo 44 B:

  • Außenmaß: 400 x 300 cm 

  • Sockelmaß: 380 x 280 cm
  • Vorderwandhöhe: ca. 220 cm
  • Rückwandhöhe: 188 cm
  • Rauminhalt: ca. 21,8 m³
  • Vollholz-Doppeltür mit Leimholzrahmen: ca. 162 x 188 cm
  • großes Rundfenster: 80 cm Durchmesser
  • Wandstärke: 44 mm

Im Lieferumfang des Gartenhauses enthalten:

  • alle Blockbohlen mit 4-fach Eckausfräsung (wind- u. regendicht)

  • großes Rundfenster mit Isolierverglasung
  • hochwertige Doppeltür mit Leimholzrahmen
  • hochwertige Türschwelle aus Aluminium
  • Sturmleisten für Windsicherung
  • Lüftungsgitter-Set für die bessere Luftzirkulation im Gartenhaus
  • Zylinderschloss, Drückergarnitur, Montagematerial & Aufbauanleitung
  • Lieferung ohne Dacheindeckung (optional als Zubehör erhältlich)
  • Lieferung in natur (ohne Farbbehandlung)
  • Wenn bei Fenstern oder Türen Sprossen im Lieferumfang sind, so werden diese separat mitgeliefert.
    Sie haben also immer die Wahl, ob Sie das Haus in einer klassischen Optik mit Sprossen/Holzkreuzen, oder etwas moderner ohne haben möchten.
  • Verpackungseinheit: B 400 x T 120 x H 67 cm; Gewicht: 870kg

Seitenverkehrte Montage möglich (Achtung: keine Montageanleitung für seitenverkehrten Aufbau enthalten – Türanschläge nicht änderbar).

Wir weisen darauf hin, dass das Produkt ständig weiterentwickelt wird und damit in Details von dem dargestellten Foto abweichen kann. Insbesondere Kundenbilder stellen teils von Kunden modifizierte Modelle dar.

Zubehör & Services
4 Zubehörartikel sind gerade ausgewählt (inkl. unseren Empfehlungen). Die passenden Mengen sind voreingestellt.

Das benötigst du für den Aufbau

Sparset Dacheindeckung KSK G WP 16 m² -

Mehr Details anzeigen

Sparset Dacheindeckung KSK G WP 16 m²

KSK Dachbahn und Winkelprofile inkl. Spenglerschrauben

Dacheindeckungs-Set - KSK mit bis zu 20% Ersparnis gegenüber dem Einzelkauf!

Das Komplettpaket für ein regensicheres Dach.

Dieses Set ist für Gartenhäuser mit einer Dachfläche von bis zu 16 m² berechnet. Mit diesem Set hast du mit einem Klick alles, was du für ein regensicheres Dach für dein Gartenhaus brauchst – und das in ausreichender Menge.

Bestehend aus:

  • KSK Dachbahn (8 Rollen)
  • Winkelprofil Typ 1b (9x 2m)
  • Spenglerschrauben mit Dichtscheiben (2x 20 St.)

Beschreibung KSK Dachbahn:

Die KSK Dachbahn ist eine selbstklebende Bitumendachbahn, die ohne Einsatz von Flammen schnell, einfach und sicher zur Abdichtung von Gartenhäusern, Garagen, Carports oder ähnlichen kleineren Bauwerken verwendet werden kann.

Artikeldetails zur KSK Dachbahn

  • Abmessung: 0,5 x 5m 
  • Dicke: ca. 4,0 mm 
  • Dachneigung ab 5°
  • Verarbeitungstemperatur: +15 bis +35 °C
  • Farbe: Anthrazit

Artikelbeschreibung Winkelprofil Typ 1b:

Für die dauerhaft Haltbarkeit Ihrer Dacheindeckung ist es erforderlich die Fugen zwischen Bitumenbahn oder Dachfolie und Dachblenden abzudecken um zu verhindern, dass Feuchtigkeit eindringt und sich die Dacheindeckung löst.

Das Winkelprofil Typ 1 aus Aluminium schützt nicht nur die Dachblenden an Flachdächern und Pultdächern vor Feuchtigkeit, sondern bietet ebenfalls einen sauberen und optisch ansprechenden Dachabschluß.

  • für die obere Schmalseite der Blenden an Flachdachhäusern Aluminium Anthrazit
  • Maße Typ 1b
  • A 30 mm
  • B 30 mm
  • C 15 mm
  • Länge 2 m
  • Stärke: 0,5 mm

Artikelbeschreibung Spenglerschrauben:

Spenglerschraube mit Dichtscheibe aus V2A, geeignet für z.B.:

  • Firstabdeckung
  • Winkelprofile
  • Traufbleche
  • Ortbleche
  • uvm.

Technische Details:

  • Abmessung: 4,5 x 20 / Torx
  • Farbe: Anthrazit RAL 7016
  • Inhalt: 20 St.

Wir empfehlen 4 Schrauben je Profil

Dieses Zubehörpaket ist mit allgemeinen Bedarfsmengen für das Gartenhaus kalkuliert. Durch verschiedene Verlegetechniken können die Mengen unterschiedlich ausgenutzt werden. Im Zweifelsfall empfehlen wir, die Artikel einzeln zu kaufen.

€ 459,00

Sparset Montagezubehör und Befestigung S

Mehr Details anzeigen

Sparset Montagezubehör und Befestigung S

Feuchtigkeitssperre, Sturmwinkel, Windverankerung                   

Basic Zubehör Set mit bis zu 20% Ersparnis gegenüber dem Einzelkauf!

Das Minimal Set für den sicheren Aufbau und Verankerung des Gartenhauses.

Wir empfehlen dieses Set dringend für jedes Gartenhaus. Damit ist dein Gartenhaus vor Feuchtigkeit und Sturm geschützt. Mit dem auf dein Haus abgestimmten Basis-Set hast du garantiert viele Jahre Freude an deinem Gartenhaus!

Dieses Set ist für Gartenhäuser mit einer Grundfläche von 0 - 20 m² berechnet. Mit diesem Set hast du mit einem Klick alles, was du für den sicheren Aufbau und Verankerung deines Gartenhauses benötigen – und das in ausreichender Menge.

Bestehend aus:

  • Feuchtigkeitssperre (Set: ca. 100 Stk.)
  • Sturmwinkel (Set: 4 Stück)                                             
  • 1x Windverankerungs-Set (Set für 2 Seiten)

Beschreibung Feuchtigkkeitssperre:

Unterlage Pads aus Spezial-Gummigranulat für Lager- und Fundamenthölzer 

Gummigranulat Pads werden beim Aufbau der Unterkonstruktion eines Gartenhauses als Feuchtigkeitssperre und zum Ausgleich von Unebenheiten benutzt. Sie werden unterhalb der Unterkonstruktion angebracht bzw. auf der Fundamentplatte verlegt. Die Pads sollten bestenfalls alle 30-40 cm verlegt werden. Da die Pads aus einem spezial Gummigranulat hergestellt werden, können sie weder Wasser aufsaugen, noch gammeln. Das Gummi schützt die Unterkonstruktion des Gartenhauses gegen aufsteigende Nässe und vermeidet somit die Verwitterung und Fäule der Unterkonstruktion. Gleichzeitig ist durch den erhöhten Aufbau eine Drainage gewährleitet und das Wasser kann problemlos abfließen und eine perfekte Luftzirkulation ist unter den Fundamenthölzern gewährleistet.

Vorteile unserer Spezial Gummigranulat Pads

  • Keine scharfen Kanten
  • Schutz gegen aufsteigende Nässe
  • Dampfdiffusionsfähig
  • Trittschalldämmend
  • Gleicht Unebenheiten in der Bodenplatte aus
  • Rutschfest
  • Unverrottbar da aus 100% Gummi hergestellt
  • Formbeständig
  • Keine Staunässe unter den Hölzern
  • Dient als Drainage, Wasser kann in alle Richtungen abfließen

Abmessungen der Pads: 

60 x 60 x 6 mm  (Länge x Breite x Stärke)

Inhalt pro Verpackung

Eine Verpackungseinheit besteht aus ca. 100 Stück Spezial Gummigranulat Pads

Tipps und Tricks zur fachgerechten Verlegung der Gummigranulat Pads sind in diesem Infovideo zu finden :

 

Beschreibung Sturmwinkel:

Spezial Sturmwinkel-Set ( 4 Stück) zur Befestigung des Gartenhauses am Fundament

Wir empfehlen dein Gartenhaus in besonders windanfälligen Gebieten mit unseren Spezial Sturm-Winkeln an der Fundament- bzw. Bodenplatte zu befestigen. Die Winkel können wahlweise Innen oder Außen in mindestens allen vier Ecken Ihren Gartenhauses an der Bodenplatte befestigt werden. Der Spezial Winkel hat einen extra langen Schenkel und verbindet somit die Fundament- bzw. Bodenplatte mit dem Fundamentholz und den ersten beiden Blockbohlenreihen. Bei größeren Garten bzw. Blockbohlenhäusern sollte zusätzlich zu den vier Ecken noch mittig ein Winkel in jeder Wand gesetzt werden. Wir liefern die Sturmwinkel ohne Befestigungsmaterial (Schrauben & Dübel). 

Verpackungseinheit pro Set: 

Ein Set besteht aus 4 Spezial Sturmwinkeln (ohne Befestigungsmaterial)

Maße: ca. 28,5 x 9 x 6,5 cm; Materialstärke: ca. 0,5 cm

Für eine 100% Sturmsicherung empfehlen wir eine Kombination aus diesem 
Set und dem Windverankerungs-Set für die einzelnen Blockbohlen !!

Tipps und Tricks zur fachgerechten Verlegung der Sturmwinkel bzw. des Windverankerungs-Sets sind in diesem Infovideo zu finden :

 

Beschreibung Windverankerungs-Set für Blockbohlenhäuser:

Wir empfehlen in besonders starken Windregionen dein Gartenhaus durch ein zusätzliches Windverankerungs-Set zu sichern. Das Set besteht aus zwei stabilen Gewindestangen, welche mit Hilfe von speziellen Metallwinkeln und Spannungsfedern in zwei gegenüberliegenden Ecken von außen oder innen in Ihrem Gartenhaus montiert werden. Die Gewindestangen verbinden die unterste und oberste Blockbohle und verhindern ein Auseinandergehen der einzelen Blockbohlen und halten diese bei Sturm zusammen. Da man die einzelnen Blockbohlen nicht unter-
einander verschrauben sollte, ist die Sicherung mit diesem Set die beste Möglichkeit die Bohlen untereinander zu verbinden. 

Im Set enhalten sind: 

4x Gewindestangen M6 x 1000mm inkl. Montagewinkel, Spannungsfedern und Montagematerial mit Schrauben

Das Montagematerial (Schrauben) ist für Blockbohlenhäuser von einer Wandstärke vom 19-45 mm
geeignet. Wenn du das Set bei starken Blockbohlen (über 45 mm) verwendest, müssen die 
Schrauben bauseits gegen längere Schrauben ausgetauscht werden !!

Für eine 100% Sturmsicherung empfehlen wir eine Kombination aus diesem Set und dem
Sturmwinkel Set für eine Befestigung auf der Fundamentplatte. 

€ 119,00

Komfort Garantie

Mehr Details anzeigen

Komfort Garantie

Welche Produkte sind durch die Gartenhaus.com Garantie abgedeckt?

Unsere Komfort Garantie gilt ausschließlich für privat genutzte Produkte. Dazu zählen: 

  • Garten- & Gerätehäuser – dein Rückzugsort oder einfache Lösung zur Aufbewahrung
  • Saunen – für wohltuende Entspannung und Wellness im eigenen Zuhause
  • Kinderspielgeräte – Spiel und Spaß für Groß und Klein
  • Holzpavillons - für dein persönliches Paradies im Garten
  • Carports – zuverlässiger Schutz für dein Fahrzeug vor Regen, Schnee und Sonne
  • Garagen – sicherer Stellplatz mit zusätzlichem Stauraum für deine Bedürfnisse

Mit unserer Garantie kannst du dich auf die Qualität deines Produkts verlassen. Sollte doch einmal etwas nicht passen, sind wir schnell und unkompliziert für dich da.

Was beinhaltet die Komfort Garantie?

Dank unserer Komfort Garantie musst du dir keine Sorgen machen. Geht etwas kaputt, bekommst du von uns die passenden Ersatzteile für folgende Bereiche: 

  • Türen (Glasschäden bis zu 200 €)
  • Fenster (Glasschäden bis zu 200 €)
  • Dachrinne – für einen sicheren Wasserablauf
  • Türschloss – für zuverlässigen Schutz
  • Beschläge – falls kleine, aber wichtige Teile ersetzt werden müssen
  • Dacheindeckung (Dachpappe, Dachschindeln, KSK) – für optimalen Schutz vor Wind und Wetter

Wichtig:

Die Komfort-Garantie umfasst ausschließlich die Lieferung der Ersatzteile. Der Einbau liegt in deiner Hand. Für eine professionelle Montage wähle die Premium-Garantie. 

Mit der Komfort Garantie bist du gut abgesichert und kannst dein Gartenhaus.com-Produkt unbesorgt genießen.

Garantiebedingungen

Alle Details und mehr Infos zur Komfort Garantie

Noch Fragen? Unser Kundenservice ist jederzeit für dich da!

€ 69,00

Premium-Lasur-Farben-Set XL - farblos

Mehr Details anzeigen

Premium-Lasur-Farben-Set XL

PGH Premium Holzschutzgrund* Imprägnierung, PGH Premium Wetterschutzlasur

Lasur-Farben-Set mit bis zu 15% Ersparnis gegenüber dem Einzelkauf!

Natürlich schön – das Komplettset für lasierten Holzschutz

Dieses Set ist perfekt für alle, die die natürliche Holzmaserung ihres Gartenhauses betonen möchten. Die Lasur dringt tief ins Holz ein, schützt es vor Witterung und lässt gleichzeitig die Struktur des Holzes sichtbar – für ein natürliches, atmungsaktives Finish.

Berechnet für eine Fläche von ca. 51 m² enthält dieses Set alles, was du für den Außenanstrich brauchst – in der passenden Menge und abgestimmt auf die Lasurtechnik.

Bestehend aus:

  • PGH Holzschutzgrund Imprägnierung (3 Gebinde á 2,5 l) zum vorbeugenden Schutz vor Bläue-, Insekten- und Pilzbefall.
  • PGH Wetterschutzlasur (3 Gebinde á 2,5 l) in der Farbe kiefer, kalkweiß, schwedenrot, nussbaum, teak, achatgrau, graphitgrau oder farblos. Bei dieser farblichen Endbehandlung bleibt die Holzmaserung und der natürliche Charme von Holz sichtbar. 

Die GartenHaus Profis empfehlen:

  1. Einmaliger Auftrag mit PGH Holzschutzgrund Imprägnierung, zum vorbeugenden Schutz vor Bläue-, Insekten- und Pilzbefall.
  2. Versiegel von Außen dein Wunschprodukt, mit zwei Anstrichen PGH Wetterschutzlasur in deiner Wunschfarbe und schütze es so lange Zeit wirksam vor Witterungseinflüssen.

Beschreibung PGH Premium Holzschutzgrund* Imprägnierung:

PGH Holzschutzgrund ist eine wasserbasierte, bläueschützende Holzimprägnierung für den Außenbereich.

PGH Holzschutzgrund dient zur vorbeugenden Anwendung und sicheren Schutz gegen Bläuepilze auf Hölzern ohne Erdkontakt im Außenbereich.

Anwendungsgebiete:

Holz im Außenbereich z.B. Holzfassaden, Carports, Fenster und Außentüren, Dachuntersichten.

Eigenschaften:

  • bläueschützende Imprägnierung für außen
  • tiefenwirksam
  • wasserbasiert
  • farblos

Reichweite:

  • 2,5l reichen für ca. 18-21 m² bei einmaligem Anstrich

* Biozidprodukte vorsichtig verwenden. Vor Gebrauch stets Kennzeichnung und Produktinformation lesen.

Beschreibung PGH Premium Wetterschutzlasur:

PGH Wetterschutzlasur ist die seidenglänzende, aromatenfreie Holzlasur für außen.

PGH Wetterschutzlasur ist tropfgehemmt eingestellt und somit ideal für Arbeiten über Kopf geeignet. Sie ist offenporig, feuchtigkeitsregulierend und leicht zu verarbeiten und eignet sich für alle Laub- und Nadelhölzer im Außenbereich, die einen UV- und wetterbeständigen Anstrich erhalten sollen.

Anwendungsgebiete: 

Holz im Außenbereich z.B. Gartenhäuser, Carports, Pergolen, Dachuntersichten oder Saunen

Eigenschaften:

  • lasierender Schutzanstrich für außen
  • UV- und wetterbeständig
  • tropfgehemmt
  • seidenglänzend

Reichweite:

  • 2,5l reichen für ca. 30-37 m² bei einmaligem Anstrich

Achtung: Set enthält Farb-Material zum bauseitigen Selbstanstrich. Farbdarstellung kann je nach Bildschirm variieren und ist somit nicht verbindlich!

Was ist der Unterschied zwischen Lasur und Deckfarbe?

Lasur: Lässt die Holzmaserung durchscheinen, wirkt natürlich und atmungsaktiv. Ideal, wenn du den Charakter des Holzes erhalten möchtest.

Deckfarbe: Übermalt die Holzstruktur komplett, bietet intensive Farbe und stärkeren UV-Schutz. Perfekt für einen modernen, gleichmäßigen Look.

€ 259,00

Premium-Deckfarben-Set XL - weiß

Mehr Details anzeigen

Premium-Deckfarben-Set XL

PGH Premium Holzschutzgrund* Imprägnierung, PGH Premium Isoliergrund Voranstrich, PGH Premium Wetterschutzfarbe

Deckfarben-Set mit bis zu 15% Ersparnis gegenüber dem Einzelkauf!

Starke Farbe – das Komplettset für deckenden Holzschutz

Dieses Set ist ideal, wenn du deinem Gartenhaus einen kräftigen, gleichmäßigen Farbanstrich verleihen möchtest. Die Deckfarbe überdeckt die Holzstruktur vollständig und schützt zuverlässig vor Witterungseinflüssen – für ein langlebiges, farbintensives Ergebnis.

Berechnet für Flächen bis ca. 40m² bekommst du mit diesem Set alle benötigten Materialien für einen deckenden Außenanstrich – alles in einem Klick, alles in ausreichender Menge.

Bestehend aus:

  • PGH Premium Holzschutzgrund* Imprägnierung (3 Gebinde á 2,5 l) zum vorbeugenden Schutz vor Bläue-, Insekten- und Pilzbefall.
  • PGH Premium Isoliergrund Voranstrich (3 Gebinde á 2,5 l) gegen das Durchschlagen von farbigen Holzinhaltsstoffen und Vermeidung von Gelbverfärbungen bei hellen Deckanstrichen.
  • PGH Premium Wetterschutzfarbe  (5 Gebinde á 2,5 l) in der Farbe weiß, lichtgrau, anthrazitgrau, moosgrün, schwedenrot, taubenblau, fenstergrau oder sepiabraun. Hervorragend geeignet für die farbliche Endbehandlung.
  • PGH Premium Wetterschutzfarbe für Fenster & Türen in der Farbe weiß (1 Gebinde á 2,5 l). Farblicher Akzent für Fenster & Türen und vorbeugender Schutz vor Verziehen von Fenster- und Türrahmen.

Die GartenHaus Profis empfehlen:

  1. Einmaliger Auftrag mit PGH Holzschutzgrund* Imprägnierung, zum vorbeugenden Schutz vor Bläue-, Insekten- und Pilzbefall.
  2. Bei hellen Deckanstrichen: Ein Anstrich mit PGH Isoliergrund gegen das Durchschlagen von farbigen Holzinhaltsstoffen und Vermeidung von Gelbverfärbungen.
  3. Versiegel von Außen dein Wunschprodukt mit zwei Anstrichen PGH Wetterschutzfarbe in deiner Wunschfarbe und schütze es so lange Zeit wirksam vor Witterungseinflüssen.
  4. Fenster, Türen und Rahmen von Innen und Außen mit zwei Anstrichen PGH Wetterschutzfarbe in weiß behandeln. Das verhindert, dass Fenster- und Türrahmen sich verziehen. Außerdem sorgt es für farbliche Akzente.

Beschreibung PGH Holzschutzgrund Imprägnierung:

PGH Holzschutzgrund ist eine wasserbasierte, bläueschützende Holzimprägnierung für den Außenbereich.

PGH Holzschutzgrund dient zur vorbeugenden Anwendung und sicheren Schutz gegen Bläuepilze auf Hölzern ohne Erdkontakt im Außenbereich.

Anwendungsgebiete:

Holz im Außenbereich z.B. Holzfassaden, Carports, Fenster und Außentüren, Dachuntersichten.

Eigenschaften:

  • bläueschützende Imprägnierung für außen
  • tiefenwirksam
  • wasserbasiert
  • farblos

Reichweite:

  • 2,5l reichen für ca. 18-21 m² bei einmaligem Anstrich

* Biozidprodukte vorsichtig verwenden. Vor Gebrauch stets Kennzeichnung und Produktinformation lesen.

Beschreibung PGH Isoliergrund:

PGH Isoliergrund ist der wasserbasierte, weiße Spezialgrundanstrich für Holz im Innen- und Außenbereich.

PGH Isoliergrund verhindert durch seine spezielle Rezeptur das Durchschlagen von wasserlöslichen, färbenden Holzinhaltsstoffen und damit eine Fleckenbildung an der Oberfläche des Anstrichs. Er ist außen und innen einsetzbar auf allen Laub- und Nadelhölzern. Kann auch zur Grundierung von MDF-, OSB- und Spanplatten eingesetzt werden.

Anwendungsgebiete: 

Holz im Innen- und Außenbereich z.B. Laub- und Nadelhölzer, sowie MDF-, OSB- und Spanplatten

Eigenschaften:

  • isolierende Vorbehandlung für innen und außen
  • gegen das Durchschlagen von Holzinhaltsstoffen
  • wasserbasiert
  • weiß

Reichweite:

  • 2,5l reichen für ca. 20-25 m² bei einmaligem Anstrich

Beschreibung PGH Premium Wetterschutzfarbe:

PGH Wetterschutzfarbe ist die seidenglänzende, schnell trocknende und wasserverdünnbare Holzdeckfarbe für außen.PGH Wetterschutzfarbe ist umweltschonend, weil schadstoffarm, leicht zu verarbeiten, hoch wetterbeständig und wasserdampfdurchlässig.

PGH Wetterschutzfarbe ist UV-beständig und nach einer entsprechenden Untergrundvorbehandlung und Grundierung ideal geeignet für Anstriche auf Nadel- und Laubhölzern im Außenbereich. Enthält einen integrierten Oberflächenschutz gegen Algen- und Pilzbefall. Nicht für Sitzmöbel, Tischplatten oder Flächen mit Lebensmittelkontakt einsetzen.

Anwendungsgebiete:

Holz im Außenbereich z.B. Gartenhäuser, Carports, Zäune oder Saunen

Eigenschaften:

  • deckender Schutzanstrich für außen
  • UV- und wetterbeständig
  • feuchtigkeitsregulierend
  • seidenglänzend

Reichweite:

  • 2,5l reichen für ca. 13-20 m² bei einmaligem Anstrich

Achtung: Set enthält Farb-Material zum bauseitigen Selbstanstrich. Farbdarstellung kann je nach Bildschirm variieren und ist somit nicht verbindlich!

Was ist der Unterschied zwischen Lasur und Deckfarbe?

Lasur: Lässt die Holzmaserung durchscheinen, wirkt natürlich und atmungsaktiv. Ideal, wenn du den Charakter des Holzes erhalten möchtest.

Deckfarbe: Übermalt die Holzstruktur komplett, bietet intensive Farbe und stärkeren UV-Schutz. Perfekt für einen modernen, gleichmäßigen Look.

€ 529,00

Sparset Universal Holzfußboden-Set 15m2 BD - 28 mm Boden naturbelassen + Dämmung Paket

Mehr Details anzeigen

Sparset Universal Holzfußboden-Set 15m2 BD

Universal Holzfußboden-Set mit bis zu 20% Ersparnis gegenüber dem Einzelkauf!

Passend zum Haus – Mit diesem Set hast du mit einem Klick die passende Anzahl Holzfußboden Pakete für dein Wunschprodukt. Optional auch mit passendem Boden-Dämmung Paket erhältlich.

Inhalt des Sets:

  • Nut- und Federbretter mit 18 mm Stärke, naturbelassen 
  • passende Anzahl Fußleisten, mit oder ohne werkseitiger Imprägnierung
  • kesseldruckimprägnierte Fundamenthölzer
  • die Imprägnierung kann ggf. farblich vom Haus abweichen
  • Material: nordische Fichte
  • Optional mit passendem Boden-Dämmung Paket, bestehend aus:
    • Styrodur-Platten (1250 x 600 x 30 mm)
    • Dampfbremsfolie
    • Multifunktionales-Tape

Bitte beachten Sie, dass der Fußboden und ggf. Material aus dem Dämmung-Paket individuell angepasst werden muss. Eine ausführliche Montageanleitung liegt dem Set bei.

Dieses Set ist für Häuser mit einer Grundfläche von 12,01 - 15 m² berechnet. Im Zweifelsfall empfehlen wir, die Artikel einzeln zu kaufen.

€ 1.599,00

Sparset Universal Holzfußboden-Set 15m2 - 18 mm Boden naturbelassen

Mehr Details anzeigen

Sparset Universal Holzfußboden-Set 15m2

Universal Holzfußboden-Set mit bis zu 20% Ersparnis gegenüber dem Einzelkauf!

Passend zum Haus – Mit diesem Set hast du mit einem Klick die passende Anzahl Holzfußboden Pakete für dein Wunschprodukt.

Inhalt des Sets:

  • Nut- und Federbretter mit 18 mm Stärke, naturbelassen 
  • passende Anzahl Fußleisten, mit oder ohne werkseitiger Imprägnierung
  • kesseldruckimprägnierte Fundamenthölzer
  • die Imprägnierung kann ggf. farblich vom Haus abweichen
  • Material: nordische Fichte

Bitte beachte, dass der Fußboden individuell angepasst werden muss. Eine ausführliche Montageanleitung liegt dem Set bei.

Dieses Set ist für Häuser mit einer Grundfläche von 12,01 - 15 m² berechnet. Im Zweifelsfall empfehlen wir, die Artikel einzeln zu kaufen.

€ 899,00

Kastendachrinnenset, anthrazit metallic - für 1 Dachseite bis 6 m

Mehr Details anzeigen

Kastendachrinnenset, anthrazit metallic - für 1 Dachseite bis 6 m

Für Flach- und Pultdächer mit Seitenlänge bis 6 m, komplettes Set für 1 Holzhausseite, zum Kleben

Marley Dachrinnen-Sets schützen Wände und Fundamente von Garten- und Blockhäusern sicher und zuverlässig vor Schäden durch Regenwasser.

Vorteile:

  • Komplettes Set mit Rinnen, Fallrohren und Befestigungszubehör
  • Leicht zu montieren
  • Alles komplett im Set
  • witterungs-, UV- und temperaturbeständig
  • Schlagfester, hochwertiger Kunststoff
  • Top Qualität - Made in Germany
  • 10 Jahre Garantie

Set-Inhalt:   

  • 3x Kastenrinne 70, 2m
  • 2x Rinnenverbindungsschale 70
  • 2x Endstück für links und rechts 70
  • 1x Stutzen 70 / DN 53
  • 13x verstellbare Rinnenhalter
  • 1x Fallrohr DN 53, 2 m
  • 2x Rohrbogen DN 53, 45°
  • 1x Rohrschelle mit Ringschraube
  • 1x Spezialkleber
  • 1x Spezialreiniger

Marley Spezialkleber und -reiniger sind auf die Beschaffenheit des Kunststoffs der Dachrinnen optimal abgestimmt und garantieren sichere und dauerhaft dichte Verbindungen.

€ 189,00

Rinneneinhang

Mehr Details anzeigen

Rinneneinhang

Ein Rinneneinhang ist der fachgerechte Abschluss an der Dachtraufe. Er ist das Übergangsblech von der Dachfläche zur Dachrinne. Der Einsatz sorgt für kontrollierten Wassereinlauf in die Dachrinne.

Material: Stahl verzinkt, pulverbeschichtet

Maße: A:60mm B:125mm D:15mm

Länge:200cm Stärke:0,50mm

Schrauben sind nicht im Lieferumfang. Passende Spenglerschrauben sind hier.

€ 49,00

Zubehör für dein Produkt

Premium Ordnungs-Set

Mehr Details anzeigen

Premium Ordnungs-Set

Dieses Ordnungs-Set ist das i-Tüpfelchen für Ihr neues Gartenhaus. Dank unseres sorgfältig zusammengestellten Ordnungssets stehen Besen, Säge und Co nicht mehr im Weg rum, sondern können bequem an den Wänden verstaut werden. Das ist nicht nur platzsparend, sondern garantiert auch ein einladendes und aufgeräumtes Raumgefühl.

Die im Set enthaltenen Haken haben eine hohe Tragfähigkeit und eignen sich hervorragend zum Sortieren und Verstauen von: Leiter, Eimer, Verlängerungskabel, Gießkanne, Gartenschlauch, Harke, Schaufel, etc., bis hin zum Fahrrad. Einige von den Haken sind außerdem zum Schutz stark ummantelt.

Das Ordnungsset besteht aus:

  • 2 x Haken in Rohr umhüllt, Ø 20 mm, Tiefe 150 mm, Traglast 90 kg
  • 5 x verzinkte Flacheisenhaken, Stahl 1,2 mm Stärke, Breite 25 mm, Tiefe 25 mm, Höhe 73 mm
  • 1 x Pro Halter für 3 Handgriffe , Ø 16 - 40 mm, Tiefe 285 mm, auf der Leiste verschiebbar
  • 1 x Gestellrahmen mit 7 Minihaken in lackiertem Stahldraht
  • 1 x Doppelhaken, Ø 16 mm x 2, Länge 250 mm, Traglast von bis zu 80 kg
  • 1 x Fahrradhaken in Rohr umhüllt mit Befestigung durch das Rad, Ø 20 mm
  • 5 x Mehrzweckdoppelhaken, Breite 75 mm, Tiefe 48 mm, Höhe 60 mm, Traglast von bis zu 20 kg
  • 1 x Doppelhaken in Rohr, Ø 20 mm, Länge 200 mm, Traglast bis zu 70 kg

€ 99,00

Montage und Services

Montage GartenHaus Block Ein-Raum bis 15m² - Premium - Montage Haus

Mehr Details anzeigen

Montage GartenHaus Block Ein-Raum bis 15m²

GartenHaus Montageservice: Fachgerechte Montage vom Profi zum Bestpreis!

Wähle bequem aus unseren Montage-Sets das für dich passende Gesamtpaket.

Option 1  –  Basic Montage – Haus:

In diesem Set sind enthalten:

·         Der Aufbau des Produktes mit dem kompletten Aufbau ab Oberkante Fundament, inklusive allen im Bausatz enthaltenen Zubehörteilen. Tragewege zum Aufbauort bis 15 m sind im Preis inklusive.

·         Wenn du dich für das Sparset "Montagezubehör und Befestigung" entscheidest, ist auch die Montage dieses Sets inklusive. Wir empfehlen dieses dringend zum sicheren Aufbau. Es schützt dein Produkt effektiv gegen Feuchtigkeit und starken Wind.

Wenn du weiteres Zubehör montieren willst, kannst du das als Zusatzmontage dazu buchen. Die findest du direkt bei deinem Wunschprodukt..

Option 2  – Premium Montage  – Haus und Dacheindeckung:

In diesem Set sind enthalten:

·         Alle Leistungen aus Montage Option 1

·         Zusätzlich enthalten ist das fachgerechte Verlegen von Dachpappe und Dachschindeln, KSK oder EPDM-Folie. Das Material ist nicht im Lieferumfang. Bestelle hierfür eines der vorgeschlagenen Dacheindeckungs-Sets bzw. das Wunschmaterial in der vorgegebenen Menge. Bitte achte auf die richtige Anzahl/Größe der Dachbahn/Folie und Dachabschluss-Profile bzw. -Blenden. Wir beraten dich gern zu den Möglichkeiten!

·         Ein persönlicher Ansprechpartner begleitet dein Projekt von Beauftragung bis zum Abschluss der Montage.

Wenn du weiteres Zubehör montieren willst, kannst du das als Zusatzmontage dazu buchen. Die findest du direkt bei deinem Wunschprodukt..

Option 3 – Exklusiv Montage – Haus und Dacheindeckung + alle optionalen Zusatzmontagen und Sonderwünsche

Wenn du das volle Programm ohne „Wenn“ und „Aber“ willst, ist diese Option genau das Richtige für dich.

In diesem Set sind enthalten:

·         Alle Leistungen der Montage Optionen 1+2

·         Die Zusatzmontage des passenden Dachrinnensets

·         Die Zusatzmontage des Fußbodens (wenn der Fußboden im Lieferumfang des Bausatzes enthalten ist, ist die Montage bereits in der Basic-Option inbegriffen)

·         Verlegung der Bodendämmung

·         Imprägnierung während des Aufbaus (nur notwendig, wenn das Produkt nicht bereits ab Werk mit einer Imprägnierung versehen wurde)

·         Längere Tragewege zum Aufbauort bis 40 m sind im Preis inklusive

·         Wir gehen auf deine individuellen Sonderwünsche ein und finden passende Lösungen

Bitte beachte, dass das zu verbauende Zubehör als optionales Zubehör bestellt werden muss. Wir bieten unseren Montageservice nur für Original-GartenHaus Zubehör an.

Weitere Hinweise:

Imprägnierung: Fachgerechtes (einmaliges) Auftragen von Imprägnierungsmittel (nach Aufbau) an der Außenseite des Produktes. Das Material ist nicht im Lieferumfang. Bestelle bitte hierfür PGH Holzschutzgrund Imprägnierung aus dem Zubehör in vorgeschlagener Menge oder das passende Farbenset.

Die Imprägnierung schafft – in Verbindung mit einer Holzendbehandlung in Form von Deckfarbe oder Lasur – die Basis für langanhaltenden Schutz vor holzabbauenden Pilzen, Bläuebefall, holzzerstörende Insekten/Schimmel. Damit ist der Grundstein für langjährige Freude an deinem Wunschprodukt gelegt! (Die Holzendbehandlung kann erst ca. 24 Stunden nach der Imprägnierung erfolgen und kann daher hier nicht mit angeboten werden.)

Wir weisen an dieser Stelle darauf hin, dass eine Imprägnierung ab Werk – bei vielen Modellen direkt als Variante zu wählen – einen stärkeren Schutz bietet als die Imprägnierung nach dem Aufbau. Bei der Werksimprägnierung wird das Imprägnierungsmittel in der Fertigung maschinell aufgetragen. Hierbei werden insbesondere auch Nut und Feder effektiv geschützt.

Die Imprägnierung des Hauses, ob durch unser Montageteam oder ab Werk, stellt eine Erstbehandlung dar. Für einen optimalen Schutz deines Hauses ist nach einer Trocknungszeit ein Zweitanstrich mit einer geeigneten Lasur - bzw. Deckfarbe nötig. Wir empfehlen dir hierfür unsere qualitätsgeprüften PGH-Farben und Lasuren aus unserem Zubehör-Sortiment.

Der GartenHaus Montageservice auf einen Blick: Deine Vorteile

✓ Fachgerechter Aufbau durch unsere Montage-Profis

✓ Ein fester Ansprechpartner für dein Projekt

✓ Bestpreisgarantie und Qualität vom Marktführer

Montageservice der GartenHaus GmbH: So funktioniert‘s:
Nach deiner Bestellung vereinbaren wir mit dir einen Termin, besprechen deinen Auftrag und klären alle deine Fragen.

Wir schicken dir rechtzeitig die Kontaktdaten deines Montagepartners aus deiner Region. Wenn du fachliche Fragen oder Wünsche hast, kannst du dich direkt an einen kompetenten Ansprechpartner wenden. Du stimmst die letzten Fragen mit dem Montage-Team ab und vereinbarst dann einen Termin.

Bitte beachte, dass die Aufbauteams zum Einplanen deines Montagetermins ausreichend Vorlaufszeit benötigen. Damit der Aufbau zeitnah nach der Lieferung erfolgen kann, empfiehlt es sich, die Buchung des Montageservices mit der Produktbestellung vorzunehmen. Eine spätere Nachbestellung des Montageservices ist nach individueller Absprache und erfolgter Prüfung gegebenenfalls möglich. Auch die Montage von Dachrinne, Fußbodendämmung, optionalem Fußboden, sowie die Imprägnierung sind optional in unserem Zubehör am Produkt hinzubuchbar.

Bitte hab Verständnis, dass aus Sicherheitsgründen nur die über die GartenHaus GmbH bezogenen Originalteile verbaut werden.

Für die Vorbereitung der Baustelle und für die Bestellung von Montageleistungen gibt es wichtige Infos. Diese findest du im Dokument und Link

 

Hinweis zur Buchung des richtigen Montageservices: Grundsätzlich sind am Produkt immer die richtigen Montageservice Artikel hinterlegt. Wenn du eine Montage nachträglich buchst, achte bitte bei der Auswahl auf folgende Merkmale:

·         Walmdach: Mit 4 und mehr Dachflächen (siehe Beispielbilder). Alle anderen Dächer werden als „Standarddach“ betrachtet

·         Fußboden: Viele unserer Produkte werden bereits ab Werk mit einem Fußboden ausgeliefert. Für diese Produkte ist das entsprechende Montageprodukt inkl. Fußboden zu wählen. Wenn der Fußboden nicht im Lieferumfang ist, kannst du ihn einfach als separates Zubehör dazu buchen. Für diese Fußböden ist die Zusatzmontage für Fußböden zu wählen.

·         Mehrraum: Für Gebäude mit mindestens einem, durch eine Wand getrennten Raum oder Schlafboden

·         Quadratmeteranzahl: Bezieht sich auf die Grundfläche + Dachüberhang des zu montierenden Produktes

·         Bauart:

Block bezeichnet Häuser, bei denen die Bohlen ineinandergreifend ausgeführt sind (siehe folgendes Bild)

Schraubsystem bezieht sich auf Produkte, die in Elementen oder einzelnen Bohlen ausgeführt sind und im Rahmen verschraubt werden müssen. (siehe folgendes Bild)

€ 1.799,00

Imprägnierung bis 15m²

Mehr Details anzeigen

Imprägnierung bis 15m²

Wenn du dich dafür entscheidest, dein Produkt von einem unserer Montageteams imprägnieren zu lassen, handelt es sich um das fachgerechte (einmalige) Auftragen von Imprägnierungsmittel (nach Aufbau) an der Außenseite des Produktes.

Achtung: Das Material ist nicht im Lieferumfang. Bestelle bitte hierfür PGH Holzschutzgrund Imprägnierung aus dem Zubehör in vorgeschlagener Menge oder das passende Farbenset.

Die Imprägnierung schafft – in Verbindung mit einer Holzendbehandlung in Form von Deckfarbe oder Lasur – die Basis für langanhaltenden Schutz vor holzabbauenden Pilzen, Bläuebefall, holzzerstörende Insekten/Schimmel. Damit ist der Grundstein für langjährige Freude an Ihrem Wunschprodukt gelegt. Die Holzendbehandlung kann erst ca. 24 Stunden nach der Imprägnierung erfolgen und kann daher hier nicht mit angeboten werden.

Wir weisen an dieser Stelle darauf hin, dass eine Imprägnierung ab Werk – bei vielen Modellen direkt als Variante zu wählen – einen stärkeren Schutz bietet als die Imprägnierung nach dem Aufbau. Bei der Werksimprägnierung wird das Imprägnierungsmittel in der Fertigung maschinell aufgetragen. Hierbei werden insbesondere auch Nut und Feder effektiv geschützt.

Die Imprägnierung des Hauses, ob durch unser Montageteam oder ab Werk, stellt eine Erstbehandlung dar. Für einen optimalen Schutz deines Hauses ist nach einer Trocknungszeit ein Zweitanstrich mit einer geeigneten Lasur - bzw. Deckfarbe nötig. Wir empfehlen dir hierfür unsere qualitätsgeprüften PGH-Farben und Lasuren aus unserem Zubehör-Sortiment.

Der GartenHaus Montageservice auf einen Blick: Deine Vorteile

✓ Fachgerechter Aufbau durch unsere Montage-Profis

✓ Ein fester Ansprechpartner für dein Projekt

✓ Bestpreisgarantie und Qualität vom Marktführer

Montageservice der GartenHaus GmbH: So funktioniert‘s:
Nach deiner Bestellung vereinbaren wir mit dir einen Termin, besprechen deinen Auftrag und klären alle deine Fragen.

Wir schicken dir rechtzeitig die Kontaktdaten deines Montagepartners aus deiner Region. Wenn du fachliche Fragen oder Wünsche hast, kannst du dich direkt an einen kompetenten Ansprechpartner wenden. Du stimmst die letzten Fragen mit dem Montage-Team ab und vereinbarst dann einen Termin.

Bitte beachte, dass die Aufbauteams zum Einplanen deines Montagetermins ausreichend Vorlaufszeit benötigen. Damit der Aufbau zeitnah nach der Lieferung erfolgen kann, empfiehlt es sich, die Buchung des Montageservices mit der Produktbestellung vorzunehmen. Eine spätere Nachbestellung des Montageservices ist nach individueller Absprache und erfolgter Prüfung gegebenenfalls möglich.

Bitte hab Verständnis, dass aus Sicherheitsgründen nur die über die GartenHaus GmbH bezogenen Originalteile verbaut werden.

Für die Vorbereitung der Baustelle und für die Bestellung von Montageleistungen gibt es wichtige Infos. Diese findest du im Dokument und Link

€ 179,00

Montage Dachrinne - 1 Dachseite

Mehr Details anzeigen

Montage Dachrinne - 1 Dachseite

Du hast dich zum Schutz und für die Langlebigkeit deines Produkts für ein passendes Dachentwässerungssystem entschieden.

Dann buch die professionelle Montage vom Fachmann gleich mit hinzu.. (Bei diesem Artikel handelt es sich um eine Zusatzmontage, die nur in Verbindung mit einem Montageauftrag für eines unserer Hauptprodukte gebucht werden kann)

Was ist in diesem Montageprodukt enthalten:

-          Fachgerechte Platzierung, Ausrichtung und Montage unserer Dachrinnen- bzw. Fallrohrsets

-          Montage der zusätzlich erhältlichen Rinneneinhänge (nur bei Dachrinnensets notwendig - optionales Zubehör)

Wählen die für dein Produkt passende Variante. Bei Dachrinnensets ist die Anzahl der zu entwässernden Dachseiten (1, 2 oder 4) ausschlaggebend, bei den Fallrohrsets die Anzahl der empfohlenen und bestellten Sets.

Achtung: Die Dachrinne bzw. das Fallrohr ist nicht enthalten. Bestelle hierzu eine der empfohlenen Dachrinnen bzw. Fallrohre aus unserem Zubehör. Wir empfehlen für unsere Dachrinnensets zusätzlich die Rinneneinhänge zu bestellen. Ein Rinneneinhang ist der fachgerechte Abschluss an der Dachtraufe. Er ist das Übergangsblech von der Dachfläche zur Dachrinne und sein Einsatz sorgt für kontrollierten Wassereinlauf in die Dachrinne. Die Montage der Rinneneinhänge ist im Montagepreis der Dachrinne enthalten.

Der GartenHaus Montageservice auf einen Blick: Deine Vorteile

✓ Fachgerechter Aufbau durch unsere Montage-Profis

✓ Ein fester Ansprechpartner für dein Projekt

✓ Bestpreisgarantie und Qualität vom Marktführer

Montageservice der GartenHaus GmbH: So funktioniert‘s:
Nach deiner Bestellung vereinbaren wir mit dir einen Termin, besprechen deinen Auftrag und klären alle deine Fragen.

Wir schicken dir rechtzeitig die Kontaktdaten deines Montagepartners aus deiner Region. Wenn du fachliche Fragen oder Wünsche hast, kannst du dich direkt an einen kompetenten Ansprechpartner wenden. Du stimmst die letzten Fragen mit dem Montage-Team ab und vereinbarst dann einen Termin.

Bitte beachte, dass die Aufbauteams zum Einplanen deines Montagetermins ausreichend Vorlaufszeit benötigen. Damit der Aufbau zeitnah nach der Lieferung erfolgen kann, empfiehlt es sich, die Buchung des Montageservices mit der Produktbestellung vorzunehmen. Eine spätere Nachbestellung des Montageservices ist nach individueller Absprache und erfolgter Prüfung gegebenenfalls möglich.

Bitte hab Verständnis, dass aus Sicherheitsgründen nur die über die GartenHaus GmbH bezogenen Originalteile verbaut werden.

Für die Vorbereitung der Baustelle und für die Bestellung von Montageleistungen gibt es wichtige Infos. Diese findest du im Dokument und Link

€ 199,00

Montage Boden-Dämmung bis 15m²

Mehr Details anzeigen

Montage Boden-Dämmung bis 15m²

Eine fachgerechte Dämmung des Fußbodens ist eine wertvolle Investition und gerade zur kalten Jahreszeit ist eine gute Isolierung empfehlenswert. Freu Dich auf eine warme und gemütliche Residenz in Deinem Garten und buche diesen Artikel ganz einfach zur Hausmontage dazu.

Was ist in diesem Montageprodukt enthalten:

-          Individueller Zuschnitt des Dämmmaterials

-          Befestigung der Dämmplatten am Fundamentrahmen

-          Luftdichtes Abkleben der Platten auf dem Rahmen zur optimalen Isolierwirkung

Wähle die Grundfläche, die Du isolieren willst, passend zum Produkt aus (bis 10m², bis 15m², usw.). Entscheidend ist die Grundfläche des zu isolierenden Gebäudes.


Achtung: Das Material zur Bodendämmung ist nicht enthalten. Bestelle hierzu ein empfohlenes Dämmset aus unserem Zubehör. Bei mehrstöckigen Häusern wird nur der Boden vom Untergeschoss gedämmt.

Der GartenHaus Montageservice auf einen Blick: Deine Vorteile

✓ Fachgerechter Aufbau durch unsere Montage-Profis

✓ Ein fester Ansprechpartner für dein Projekt

✓ Bestpreisgarantie und Qualität vom Marktführer

Montageservice der GartenHaus GmbH: So funktioniert‘s:
Nach deiner Bestellung vereinbaren wir mit dir einen Termin, besprechen deinen Auftrag und klären alle deine Fragen.

Wir schicken dir rechtzeitig die Kontaktdaten deines Montagepartners aus deiner Region. Wenn du fachliche Fragen oder Wünsche hast, kannst du dich direkt an einen kompetenten Ansprechpartner wenden. Du stimmst die letzten Fragen mit dem Montage-Team ab und vereinbarst dann einen Termin.

Bitte beachte, dass die Aufbauteams zum Einplanen deines Montagetermins ausreichend Vorlaufszeit benötigen. Damit der Aufbau zeitnah nach der Lieferung erfolgen kann, empfiehlt es sich, die Buchung des Montageservices mit der Produktbestellung vorzunehmen. Eine spätere Nachbestellung des Montageservices ist nach individueller Absprache und erfolgter Prüfung gegebenenfalls möglich.

Bitte hab Verständnis, dass aus Sicherheitsgründen nur die über die GartenHaus GmbH bezogenen Originalteile verbaut werden.

Für die Vorbereitung der Baustelle und für die Bestellung von Montageleistungen gibt es wichtige Infos. Diese findest du im Dokument und Link

€ 219,00

Montage Fußboden für 5 Sets

Mehr Details anzeigen

Montage Fußboden für 5 Sets

Gerade der Fußboden, die Basis deines Produktes, ist im Laufe der Zeit enormen Kräften und Belastungen ausgesetzt. Umso wichtiger ist die professionelle Montage vom Fachmann.
Überlass nichts dem Zufall und buch den Artikel einfach zur Hausmontage dazu. (Bei diesem Artikel handelt es sich um eine Zusatzmontage, die nur in Verbindung mit einem Montageauftrag für eines unserer Hauptprodukte gebucht werden kann)

Was ist in diesem Montageprodukt enthalten:

-          Aufbau und Zuschnitt des Fundamentrahmens

-          Montage der Fußbodenbretter und der Fußbodenleisten

Wählen die für dein Produkt passende Variante. Entscheidend ist hierfür die Anzahl der für dein Haus bestellten und notwendigen Fußbodensets (ein Set reicht für je 3m² Fußboden).


Achtung:Wenn der Fußboden schon im Lieferumfang des von dir bestellten Hauses enthalten ist, ist die Montage im Montagepreis für dein Haus mit drin. Bitte wähle diese Montage nur, wenn du den optionalen Fußboden dazu bestellst. Der Fußboden und das Montagematerial ist nicht in diesem Montageprodukt inkludiert und muss zusätzlich bestellt werden.

Der GartenHaus Montageservice auf einen Blick: Deine Vorteile

✓ Fachgerechter Aufbau durch unsere Montage-Profis

✓ Ein fester Ansprechpartner für dein Projekt

✓ Bestpreisgarantie und Qualität vom Marktführer

Montageservice der GartenHaus GmbH: So funktioniert‘s:
Nach deiner Bestellung vereinbaren wir mit dir einen Termin, besprechen deinen Auftrag und klären alle deine Fragen.

Wir schicken dir rechtzeitig die Kontaktdaten deines Montagepartners aus deiner Region. Wenn du fachliche Fragen oder Wünsche hast, kannst du dich direkt an einen kompetenten Ansprechpartner wenden. Du stimmst die letzten Fragen mit dem Montage-Team ab und vereinbarst dann einen Termin.

Bitte beachte, dass die Aufbauteams zum Einplanen deines Montagetermins ausreichend Vorlaufszeit benötigen. Damit der Aufbau zeitnah nach der Lieferung erfolgen kann, empfiehlt es sich, die Buchung des Montageservices mit der Produktbestellung vorzunehmen. Eine spätere Nachbestellung des Montageservices ist nach individueller Absprache und erfolgter Prüfung gegebenenfalls möglich.

Bitte hab Verständnis, dass aus Sicherheitsgründen nur die über die GartenHaus GmbH bezogenen Originalteile verbaut werden.

Für die Vorbereitung der Baustelle und für die Bestellung von Montageleistungen gibt es wichtige Infos. Diese findest du im Dokument und Link

€ 189,00

Baupläne & Dokumente
Gartenhaus Maria-Rondo 44 B Verfügbare Downloads: Sicherheitshinweise-Gartenhaus-Alpholz.pdf
Bewertungen

Durchschnittliche Bewertung von 4.5 von 5 Sternen

(3)

Durchschnittliche Bewertung von 4.5 von 5 Sternen

(3 Bewertungen)

Zufrieden

Wir sind mit dem Gartenhaus sehr zufrieden. Es dient uns als Schuppen, für die Draußenspielzeuge und Fahrzeuge. Das Haus ist sehr robust. Leider sind die Türen etwas verzogen. Bleibt sicherlich bei Holz nicht aus. Wir mussten das Haus nicht selber aufbauen, daher können wir dazu nichts sagen. Mit dem Aufbauservice sind wir sehr zufrieden. Ein wirklich sehr nettes Aufbau-Team, die auf Wünsche eingegangen sind. Wir haben das Haus nun ca. 6 Monate und es ist bis jetzt sehr stabil. Im Grunde sind wir sehr zufrieden. 1 Stern Abzug wegen der verzogenen Türen. Ansonsten alles super. Auch der Kundenservice ist klasse.

Durchschnittliche Bewertung von 4.5 von 5 Sternen

Kauf war ok.

Das gelieferte Material hat eine gute Qualität. Die Teile sind passgenau. Die Türe, bei meiner Ausführung mit zwei Flügeln, ist allerdings nicht von der gleichen Qualität wie der Rest des Hauses! Das ist sehr schade. Ich habe die Türe überarbeiten müssen . Die "Bretter" beulten deutlich nach außen und verzogen waren die Flügel auch. Hier ist deutlicher Verbesserungsbedarf.......

Durchschnittliche Bewertung von 4 von 5 Sternen

Alles bestens!

Die Qualität ist einfach super und die Lieferung hat super geklappt.

Durchschnittliche Bewertung von 5 von 5 Sternen

Produktdetails
Details:
Wandstärke mm
44
Dachform
Pultdach
Seitenverkehrte Montage
Ja
Fußboden
Optionales Zubehör
Grundfläche m²
13
Breite inkl. Dachüberhang cm
400
Tiefe inkl. Dachüberhang cm
325
Gesamthöhe cm
220
Raumanzahl
1

Beliebte Produkte